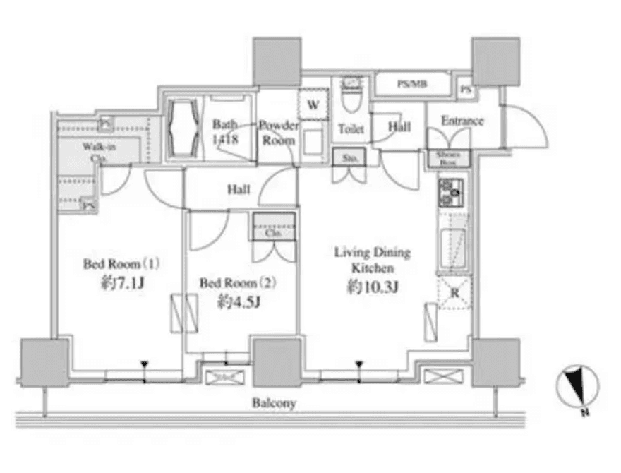
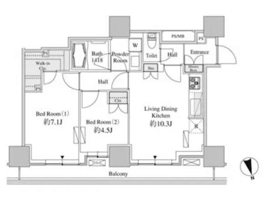
Welcome to unit 2401 in the prestigious Belfas Shibaura Tower, where modern living meets comfort. This 2LDK condo spans 53.8 square meters on the 24th floor, offering breathtaking views and an abundance of natural light. The thoughtfully designed layout features a spacious living area that seamlessly connects to a system kitchen equipped with a reheating function, perfect for culinary enthusiasts. Enjoy the convenience of an indoor washing machine space and a separate bathroom and toilet, enhancing daily functionality. A walk-in closet provides ample storage, while the balcony invites you to unwind outdoors. With amenities like air conditioning, a delivery box, and a concierge service, every detail caters to your lifestyle. Located just a 13-minute walk from both Tamachi and Sengakuji stations, commuting is effortless, making this unit an ideal sanctuary for urban living. Experience the perfect blend of comfort and convenience in this exceptional apartment.
Listed by Tokyo Portfolio • Acting as intermediary
Listing updated: 2026-02-15
Around This Property
Tamachi
13 min walk
Yamanote
Sengakuji
13 min walk
- Asakusa
Floor Plans & Monthly Fees

¥308,000
Priceper month
Including management fee (¥12,000)¥12,000
•
Insurance (¥0)
2
Beds
1
Baths
53.8
m²
*This is just a guide and may not accurately reflect what the total upfront fees will be. Some management companies will have other unique fees not accounted for here. We will always explain the full breakdown of upfront costs.
**If you have pets and this is a pet friendly property, expect to pay at least one additional month in security deposit.

More Units in This Building

Belle Face Shibaura Tower
2010
Built
1
Units on sale
This property is listed by Tokyo Portfolio.
Phone: +81 (0)3-5447-8700
Address: 5-15-12 Minami-azabu, Minato-ku, Tokyo
License number: Governor of Tokyo License (1) No. 107013 / Member of the Ibaraki Prefecture Chapter of the All Japan Real Estate Association / Member of the Tokyo Metropolitan Area Real Estate Fair Trading Council











