







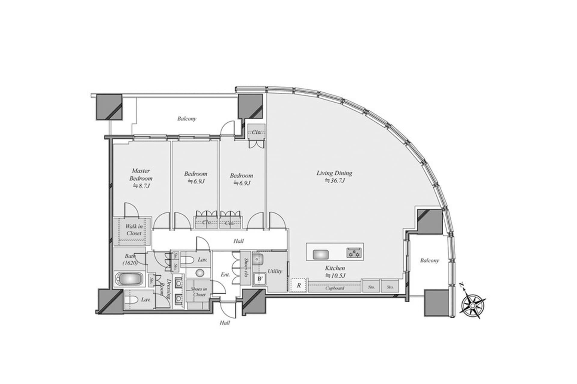
Rising on the 30th floor of Azabudai Hills Residence B, this refined 3LDK corner unit offers 160.17㎡ of elegant living framed by northeast and southeast light. From the expansive living and dining area, Tokyo Tower appears like a living artwork, shifting with the seasons and time of day. Thoughtful proportions create a calm, private atmosphere ideal for both entertaining and daily life, while pet ownership is welcomed under building guidelines. Located near Roppongi-itchome Station, Azabudai is one of Tokyo’s most dynamic neighborhoods, celebrated for its international culture, Michelin-starred dining, and lush urban greenery. The area suits global professionals, families, and those seeking a sophisticated, connected lifestyle in the heart of the city.
Listed by Tokyo Portfolio • Acting as intermediary
Listing updated: 2025-12-07
Around This Property
Roppongi-itchome
1 min walk
- Namboku
Kamiyacho
7 min walk
- Hibiya
Azabu-juban
11 min walk
- Namboku
The British School Tokyo (Azabudai Hills)
Ages 3-18 years | Walk 1 mins by foot
Floor Plans & Monthly Fees

¥3,100,000
Priceper month
Including management fee (-)¥0
•
Insurance (¥0)
3
Beds
1
Baths
160.17
m²

More Units in This Building

Azabudai Hills Residence B 2812
2025
Built
3
Units on sale
This property is listed by Tokyo Portfolio.
Phone: +81 (0)3-5447-8700
Address: 5-15-12 Minami-azabu, Minato-ku, Tokyo
License number: Governor of Tokyo License (1) No. 107013 / Member of the Ibaraki Prefecture Chapter of the All Japan Real Estate Association / Member of the Tokyo Metropolitan Area Real Estate Fair Trading Council


















