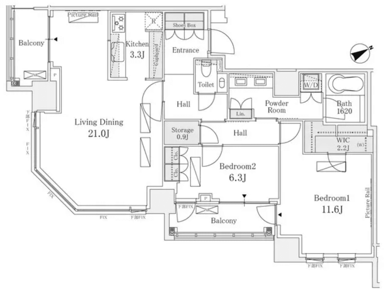
Welcome to unit 2506 at Park Court Roppongi Hilltop, a stunning 2LDK condo that offers a perfect blend of comfort and functionality across 102.39 square meters. Located on the 25th floor, this residence boasts breathtaking views and an abundance of natural light, enhancing your daily living experience. The thoughtfully designed layout features a spacious living area, ideal for both relaxation and entertaining. The modern system kitchen, complete with a dishwasher and reheating function, makes meal preparation a delight. Enjoy the convenience of a separate washbasin and a dedicated space for your washing machine, ensuring seamless daily routines. Retreat to the serene bedrooms, including a generous walk-in closet for all your storage needs. The separate bathroom and toilet add an extra layer of privacy, while the balcony invites you to unwind outdoors. With amenities like air conditioning, floor heating, and a concierge service, every detail has been considered for your comfort. Situ...
Listed by Tokyo Portfolio • Acting as intermediary
Listing updated: 2026-04-22
Around This Property
Roppongi-itchome
3 min walk
- Namboku
Kamiyacho
8 min walk
- Hibiya
Floorplan


Monthly Fees
¥1,350,000
Priceper month
Including management fee (¥0)¥0
•
Insurance (¥0)
1
Beds
1
Baths
102.39
m²
*This is just a guide and may not accurately reflect what the total upfront fees will be. Some management companies will have other unique fees not accounted for here. We will always explain the full breakdown of upfront costs.
**If you have pets and this is a pet friendly property, expect to pay at least one additional month in security deposit.
More Units in This Building

Park Court Roppongi Hilltop
2012
Built
6
Units available
This property is listed by Tokyo Portfolio.
Phone: +81 (0)3-5447-8700
Address: 5-15-12 Minami-azabu, Minato-ku, Tokyo
License number: Governor of Tokyo License (1) No. 107013 / Member of the Ibaraki Prefecture Chapter of the All Japan Real Estate Association / Member of the Tokyo Metropolitan Area Real Estate Fair Trading Council
















