Experience modern living in this elegant 2LDK apartment located in the vibrant Ebisu area. This spacious home features a well-designed layout, high-end finishes, and an abundance of natural light. Enjoy the convenience of nearby transportation options, including the Yamanote Line, as well as a variety of shops, restaurants, and parks within walking distance. The building offers top-notch amenities such as a fitness center, concierge services, and secure access. Perfect for professionals and families alike, this stunning property combines comfort, style, and location to create the ideal urban sanctuary.
Listed by Tokyo Portfolio • Acting as intermediary
Listing updated: 2026-01-16
Around This Property
Tamachi
8 min walk
Yamanote
Mita
9 min walk
- Mita
Floor Plans & Monthly Fees

¥392,000
Priceper month
Including management fee (¥0)¥0
•
Insurance (¥0)
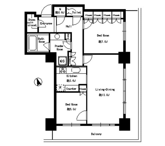
2
Beds
1
Baths
71.64
m²
*This is just a guide and may not accurately reflect what the total upfront fees will be. Some management companies will have other unique fees not accounted for here. We will always explain the full breakdown of upfront costs.
**If you have pets and this is a pet friendly property, expect to pay at least one additional month in security deposit.

More Units in This Building

Park Tower Shibaura Bayward Urban Wing
2005
Built
7
Units available
This property is listed by Tokyo Portfolio.
Phone: +81 (0)3-5447-8700
Address: 5-15-12 Minami-azabu, Minato-ku, Tokyo
License number: Governor of Tokyo License (1) No. 107013 / Member of the Ibaraki Prefecture Chapter of the All Japan Real Estate Association / Member of the Tokyo Metropolitan Area Real Estate Fair Trading Council

















