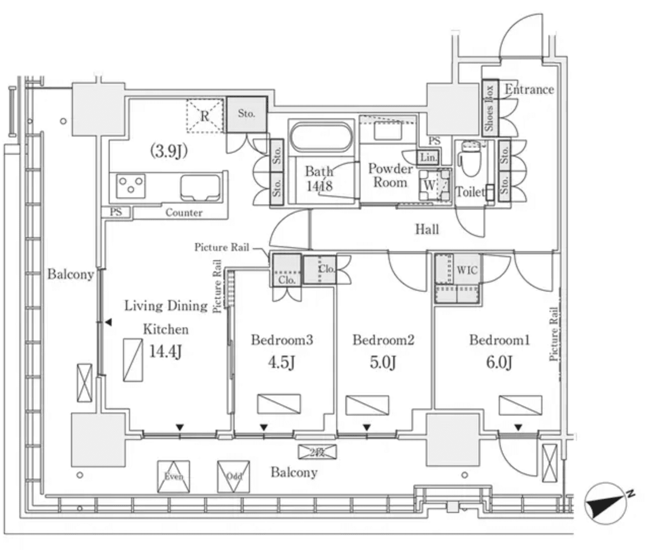
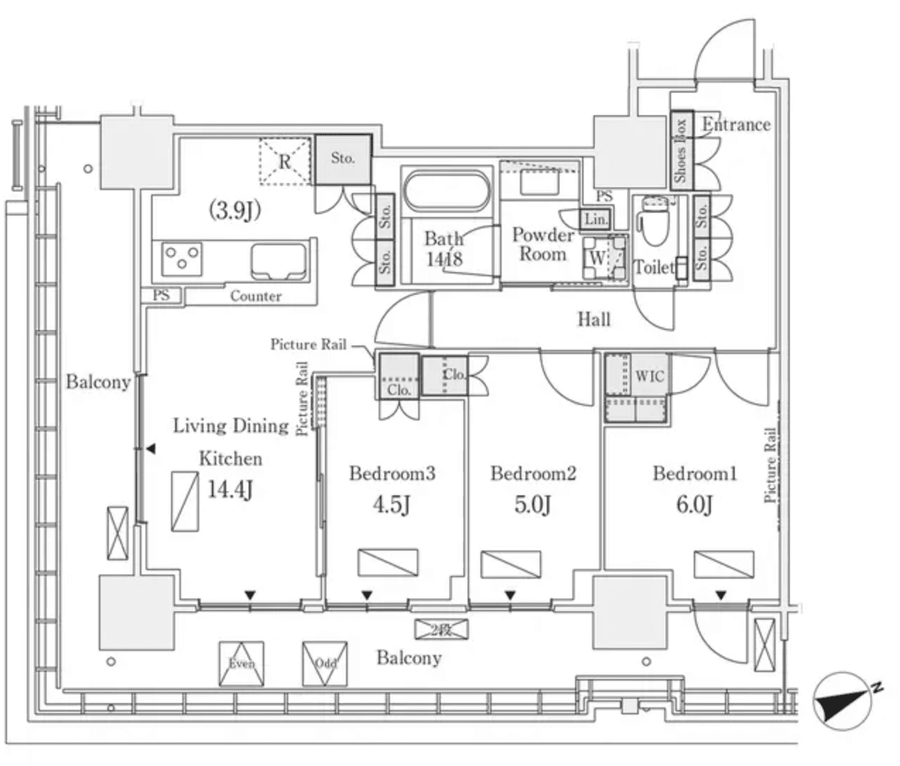
Welcome to unit 1305 in the prestigious Royal Parks Shinagawa, where modern living meets comfort. This spacious 2LDK condo spans 61.21 square meters, thoughtfully designed to enhance your daily life. The open layout seamlessly connects the living, dining, and kitchen areas, creating an inviting space for relaxation and entertaining. Enjoy the convenience of a system kitchen equipped with a dishwasher and reheating function, making meal preparation a breeze. The walk-in closet offers ample storage, while the separate washbasin and bathroom-dryer add a touch of luxury to your routine. Located on the 13th floor, this unit features air-conditioning and floor heating, ensuring year-round comfort. Step out onto your private balcony to enjoy fresh air and city views. With amenities like a concierge, auto-lock system, and bicycle parking, your lifestyle is both secure and convenient. Just an 11-minute walk to Shinagawa Station on the Yamanote Line and 20 minutes to Sengakuji Station, commu...
Listed by Tokyo Portfolio • Acting as intermediary
Listing updated: 2026-04-18
Around This Property
Shinagawa
11 min walk
Yamanote
Sengakuji
20 min walk
- Asakusa
Floor Plans & Monthly Fees

¥468,000
Priceper month
Including management fee (¥30,000)¥30,000
•
Insurance (¥0)
3
Beds
1
Baths
72.15
m²
*This is just a guide and may not accurately reflect what the total upfront fees will be. Some management companies will have other unique fees not accounted for here. We will always explain the full breakdown of upfront costs.
**If you have pets and this is a pet friendly property, expect to pay at least one additional month in security deposit.

More Units in This Building

Royal Parks Shinagawa
2025
Built
43
Units available

Unit
16141 Bed • 2 Bath
¥423,000Price

Unit
19111 Bed • 2 Bath
¥386,000Price

Unit
17111 Bed • 2 Bath
¥383,000Price

Unit
23071 Bed • 2 Bath
¥439,000Price

Unit
11141 Bed • 2 Bath
¥417,000Price

Unit
23091 Bed • 2 Bath
¥515,000Price

Unit
22081 Bed • 2 Bath
¥500,000Price

Unit
17141 Bed • 2 Bath
¥423,000Price

Unit
18141 Bed • 2 Bath
¥423,000Price

Unit
14021 Bed • 2 Bath
¥410,000Price

Unit
14111 Bed • 2 Bath
¥380,000Price

Unit
25081 Bed • 2 Bath
¥442,000Price

Unit
15141 Bed • 2 Bath
¥420,000Price

Unit
24081 Bed • 2 Bath
¥442,000Price

Unit
24161 Bed • 2 Bath
¥412,000Price

Unit
16111 Bed • 2 Bath
¥383,000Price

Unit
14101 Bed • 2 Bath
¥390,000Price

Unit
14171 Bed • 2 Bath
¥375,000Price

Unit
19021 Bed • 3 Bath
¥416,000Price

Unit
10131 Bed • 2 Bath
¥390,000Price

Unit
10031 Bed • 2 Bath
¥379,000Price

Unit
10141 Bed • 2 Bath
¥460,000Price

Unit
17011 Bed • 2 Bath
¥350,000Price

Unit
25121 Bed • 2 Bath
¥430,000Price

Unit
16071 Bed • 3 Bath
¥490,000Price

Unit
6101 Bed • 1 Bath
¥362,000Price

Unit
14141 Bed • 2 Bath
¥455,000Price

Unit
24101 Bed • 2 Bath
¥540,000Price

Unit
23131 Bed • 3 Bath
¥620,000Price

Unit
21091 Bed • 2 Bath
¥383,000Price

Unit
13141 Bed • 1 Bath
¥455,000Price

Unit
28041 Bed • 3 Bath
¥1,370,000Price

Unit
11121 Bed • 2 Bath
¥370,000Price

Unit
15051 Bed • 3 Bath
¥472,000Price

Unit
26011 Bed • 3 Bath
¥950,000Price

Unit
14131 Bed • 2 Bath
¥412,000Price

Unit
28091 Bed • 3 Bath
¥775,000Price

Unit
21161 Bed • 3 Bath
¥488,000Price

Unit
21051 Bed • 3 Bath
¥482,000Price

Unit
24141 Bed • 3 Bath
¥640,000Price

Unit
24061 Bed • 2 Bath
¥455,000Price

Unit
20091 Bed • 2 Bath
¥388,000Price

Unit
23081 Bed • 1 Bath
¥532,000Price
This property is listed by Tokyo Portfolio.
Phone: +81 (0)3-5447-8700
Address: 5-15-12 Minami-azabu, Minato-ku, Tokyo
License number: Governor of Tokyo License (1) No. 107013 / Member of the Ibaraki Prefecture Chapter of the All Japan Real Estate Association / Member of the Tokyo Metropolitan Area Real Estate Fair Trading Council










