





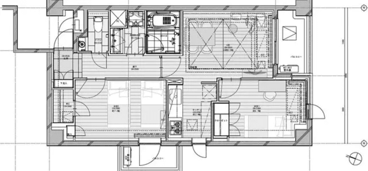
Grand Paseo Nishiazabu II offers an elegant new 2LDK residence in one of Tokyo’s most sought-after neighborhoods. Designed for modern urban living, this pet-friendly luxury unit boasts a sleek, contemporary interior with high-end finishes. Expansive windows fill the space with natural light, creating an inviting atmosphere, while the thoughtfully designed layout maximizes comfort and functionality. Nestled between Roppongi and Omotesando, this prime location places you within walking distance of world-class dining, high-end shopping, and vibrant nightlife. Ideal for professionals and couples seeking an upscale city lifestyle, this exquisite residence provides both convenience and tranquility in the heart of Tokyo.
Listed by Tokyo Portfolio • Acting as intermediary
Listing updated: 2025-02-06
Around This Property
Roppongi
10 min walk
- Oedo
- Hibiya
Nogizaka
10 min walk
- Chiyoda
The British School Tokyo (Azabudai Hills)
Ages 3-18 years | By Car 9 mins by foot
Floor Plans & Monthly Fees

¥382,000
Priceper month
Including management fee (-)¥0
•
Insurance (¥0)
2
Beds
1
Baths
58.26
m²

This property is listed by Tokyo Portfolio.
Phone: +81 (0)3-5447-8700
Address: 5-15-12 Minami-azabu, Minato-ku, Tokyo
License number: Governor of Tokyo License (1) No. 107013 / Member of the Ibaraki Prefecture Chapter of the All Japan Real Estate Association / Member of the Tokyo Metropolitan Area Real Estate Fair Trading Council































