







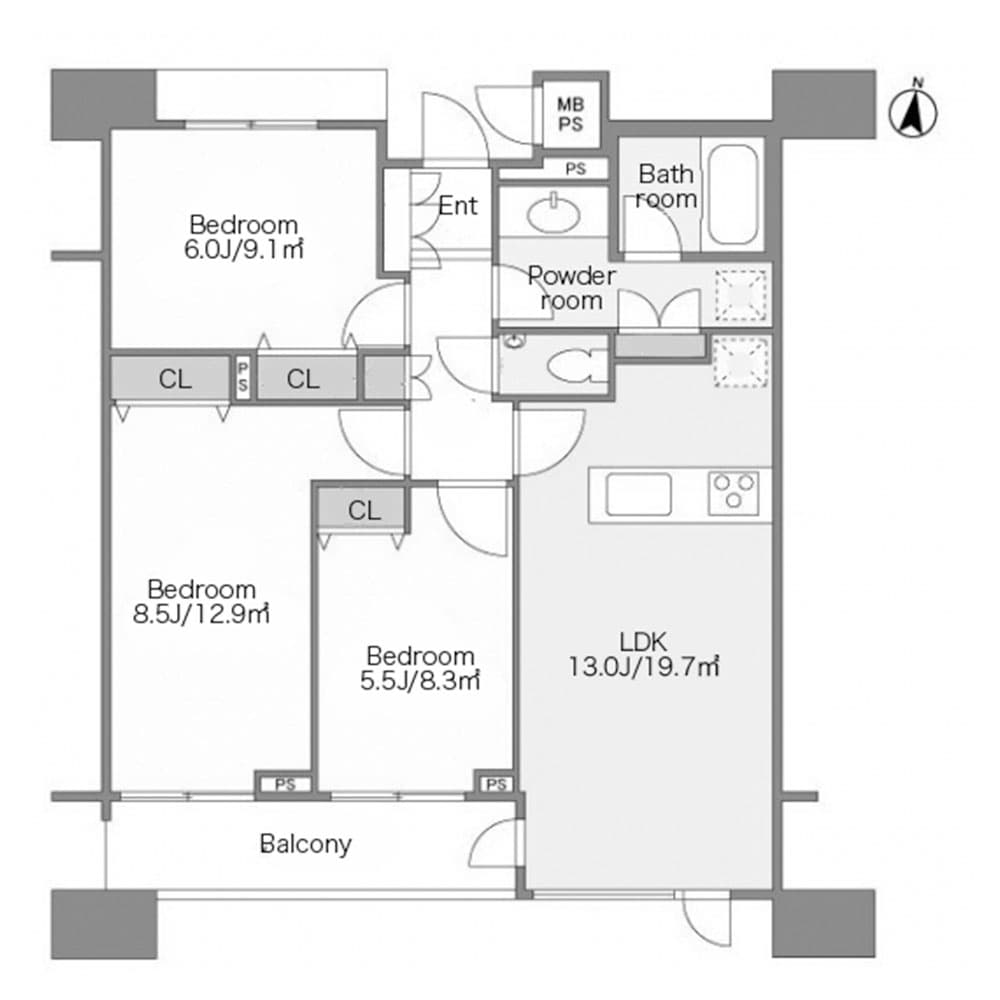
Discover the charm of HF Shirokane Takanawa Residence, a stylish 3LDK unit offering 72.09㎡ of refined living space. This residence features a spacious, open kitchen flowing seamlessly into a bright and inviting living area, perfect for entertaining or unwinding. Each bedroom is thoughtfully designed with ample storage, ensuring both comfort and convenience. Nestled near Shirokane Takanawa, the property is surrounded by a blend of modern amenities and traditional elegance. This area is popular with families and professionals seeking tranquility within easy reach of the city's heart. Enjoy gourmet dining, boutique shopping, and nearby green spaces, ideal for a sophisticated Tokyo lifestyle.
Listed by Tokyo Portfolio • Acting as intermediary
Listing updated: 2025-02-20
Around This Property
Shirokane-takanawa
3 min walk
- Mita
- Namboku
Floor Plans & Monthly Fees

¥422,000
Priceper month
Including management fee (-)¥0
•
Insurance (¥0)
3
Beds
1
Baths
72.09
m²

More Units in This Building

HF Shirokane Takanawa Residence
2005
Built
2
Units on sale
This property is listed by Tokyo Portfolio.
Phone: +81 (0)3-5447-8700
Address: 5-15-12 Minami-azabu, Minato-ku, Tokyo
License number: Governor of Tokyo License (1) No. 107013 / Member of the Ibaraki Prefecture Chapter of the All Japan Real Estate Association / Member of the Tokyo Metropolitan Area Real Estate Fair Trading Council












