













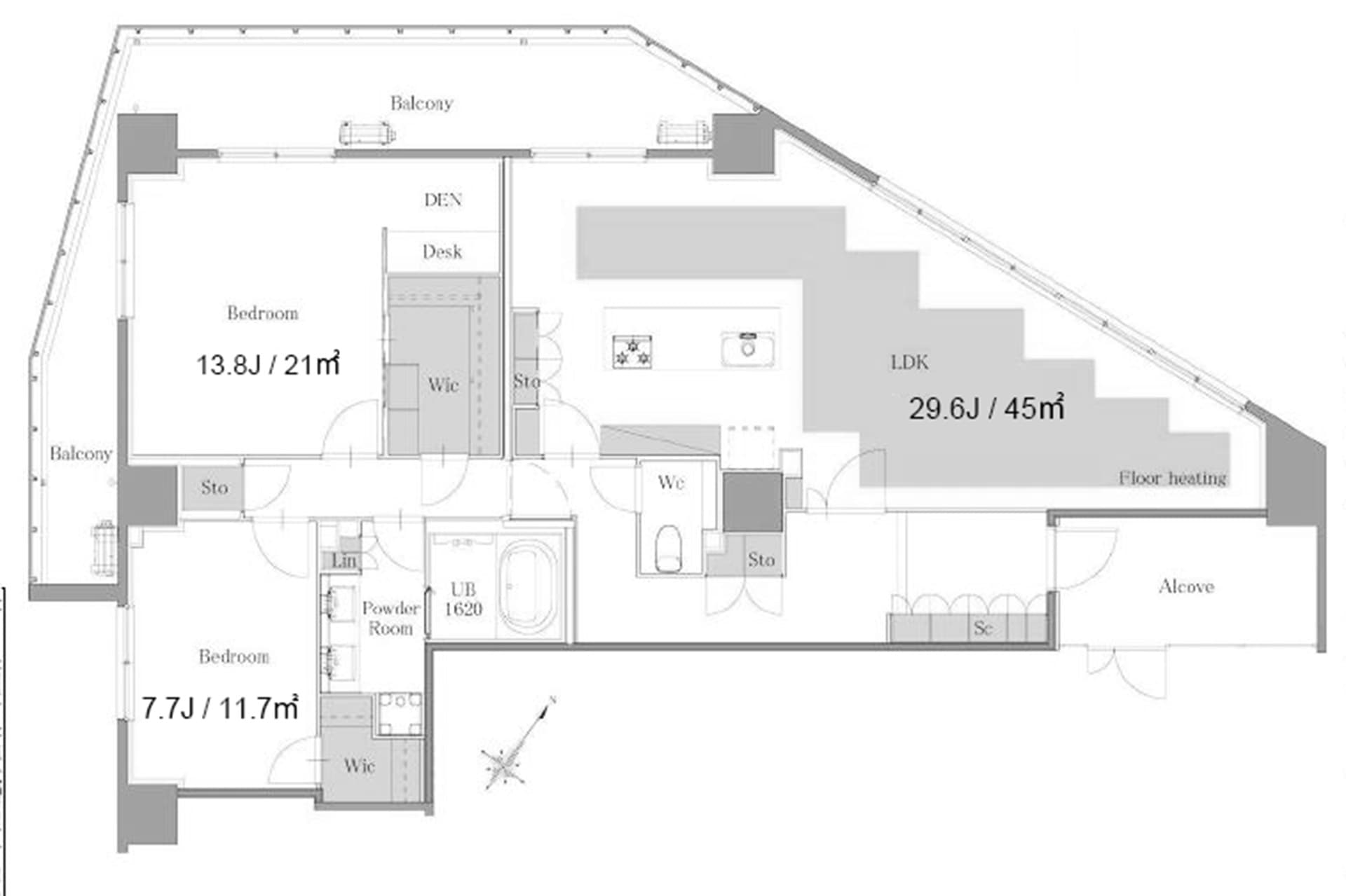
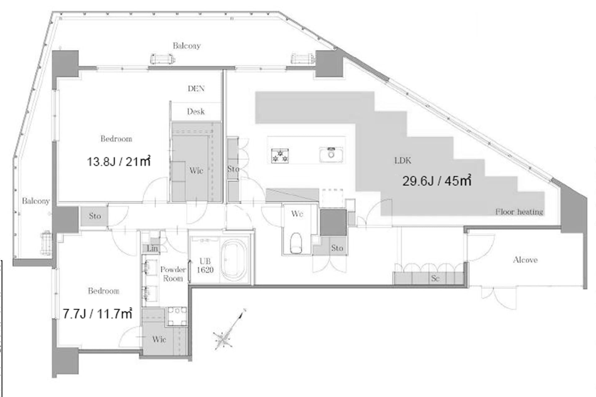
Step into a world of quiet luxury at Minami Azabu Sendaizaka Residence, a newly built 125.21㎡ 2-bedroom home designed for those who appreciate refined living. Completed in 2023, this spacious unit features clean architectural lines, generous natural light, and a seamless flow between indoor and outdoor spaces. The open-plan living and dining area leads to a private balcony, perfect for morning coffee or evening wine, while high-end finishes and smart storage solutions ensure both elegance and practicality. Located in the prestigious Minami Azabu district, the residence is surrounded by embassies, international schools, and the peaceful greenery of Arisugawa Park. Tree-lined avenues, gourmet markets, and artisan cafés make this neighborhood a favorite among global professionals, diplomats, and families seeking safety, style, and sophistication. With easy access to Hiroo and Azabu-Juban stations, residents enjoy the best of Tokyo’s urban convenience and residential calm. At Sendaizaka ...
Listed by Tokyo Portfolio • Acting as intermediary
Listing updated: 2025-06-22
Around This Property
Azabu-juban
7 min walk
- Oedo
- Namboku
The American School in Japan ELC
Ages 3-6 years | Walk 10 mins by foot
Nishimachi International School
Ages 5-14 years | Walk 5 mins by foot
The Montessori School of Tokyo (Grove Campus)
Ages 1-15 years | Walk 4 mins by foot
The Montessori School of Tokyo (Forest Campus)
Ages 1-15 years | Walk 5 mins by foot
Ivy Prep International school
Ages 3-14 years | Walk 10 mins by foot
Tokyo International School
Ages 4-16 years | Walk 7 mins by foot
Floor Plans & Monthly Fees

¥1,100,000
Priceper month
Including management fee (-)¥0
•
Insurance (¥0)
2
Beds
1
Baths
125.21
m²

More Units in This Building

Minami Azabu Sendaizaka Residence
2023
Built
1
Units on sale
This property is listed by Tokyo Portfolio.
Phone: +81 (0)3-5447-8700
Address: 5-15-12 Minami-azabu, Minato-ku, Tokyo
License number: Governor of Tokyo License (1) No. 107013 / Member of the Ibaraki Prefecture Chapter of the All Japan Real Estate Association / Member of the Tokyo Metropolitan Area Real Estate Fair Trading Council





















