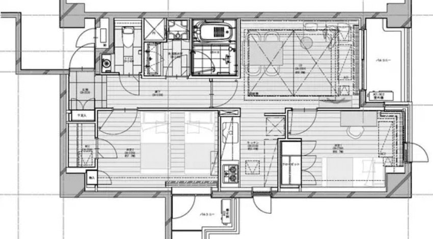
Welcome to unit 307 at NK Aoyama Homes, a beautifully designed 2LDK condo that spans 62.02 square meters. This third-floor residence offers a seamless blend of comfort and functionality, perfect for modern living. Step inside to discover an inviting layout that maximizes space. The system kitchen, equipped with a dishwasher, makes meal preparation a joy, while the separate washbasin and bathroom ensure privacy and convenience. Enjoy the luxury of a walk-in closet, air-conditioning, and floor heating, creating a cozy atmosphere year-round. The unit also features a balcony, ideal for morning coffee or evening relaxation. With amenities like a bathroom dryer and indoor washing machine space, daily chores become effortless. Located just a short walk from Nogizaka Station and Omote-sando Station, commuting is a breeze, connecting you to the vibrant heart of the city. Experience the perfect blend of comfort and accessibility in this exceptional apartment.
Listed by Tokyo Portfolio • Acting as intermediary
Listing updated: 2026-01-29
Around This Property
Nogizaka
7 min walk
- Chiyoda
Omote-sando
10 min walk
- Ginza
Roppongi
16 min walk
- Hibiya
Floor Plans & Monthly Fees

¥400,000
Priceper month
Including management fee (¥0)¥0
•
Insurance (¥0)
2
Beds
1
Baths
62.02
m²
*This is just a guide and may not accurately reflect what the total upfront fees will be. Some management companies will have other unique fees not accounted for here. We will always explain the full breakdown of upfront costs.
**If you have pets and this is a pet friendly property, expect to pay at least one additional month in security deposit.

More Units in This Building

NK Aoyama Homes
1999
Built
4
Units available
This property is listed by Tokyo Portfolio.
Phone: +81 (0)3-5447-8700
Address: 5-15-12 Minami-azabu, Minato-ku, Tokyo
License number: Governor of Tokyo License (1) No. 107013 / Member of the Ibaraki Prefecture Chapter of the All Japan Real Estate Association / Member of the Tokyo Metropolitan Area Real Estate Fair Trading Council













