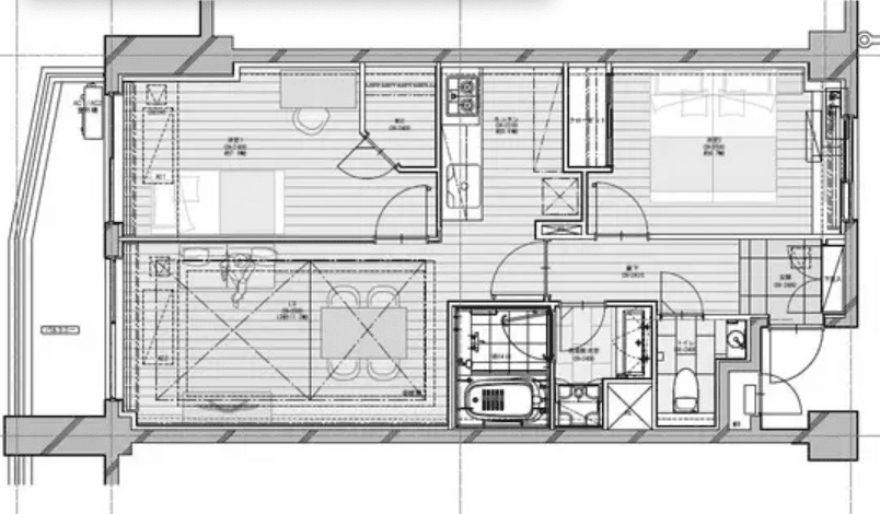
Welcome to unit 404 at NK Aoyama Homes, a beautifully designed 2LDK condo that spans 62.02 square meters. This fourth-floor residence offers a perfect blend of comfort and functionality, ideal for modern living. Step inside to discover a spacious layout that includes a system kitchen, complete with a dishwasher, and a cozy living area bathed in natural light. The walk-in closet provides ample storage, while the separate washbasin and bathroom-toilet enhance daily convenience. Enjoy the luxury of floor heating and air-conditioning, ensuring your comfort year-round. With an elevator for easy access and a balcony for relaxation, this unit supports a vibrant lifestyle. Located just a short walk from Nogizaka and Omote-sando stations, commuting is a breeze, allowing you to explore the city effortlessly. Experience the perfect blend of style and practicality in this inviting space.
Listed by Tokyo Portfolio • Acting as intermediary
Listing updated: 2026-01-29
Around This Property
Nogizaka
7 min walk
- Chiyoda
Omote-sando
10 min walk
- Ginza
Roppongi
16 min walk
- Hibiya
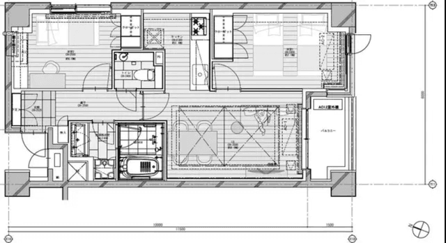
Floor Plans & Monthly Fees

¥435,000
Priceper month
Including management fee (¥0)¥0
•
Insurance (¥0)
2
Beds
1
Baths
66.24
m²
*This is just a guide and may not accurately reflect what the total upfront fees will be. Some management companies will have other unique fees not accounted for here. We will always explain the full breakdown of upfront costs.
**If you have pets and this is a pet friendly property, expect to pay at least one additional month in security deposit.

More Units in This Building

NK Aoyama Homes
1999
Built
4
Units available
This property is listed by Tokyo Portfolio.
Phone: +81 (0)3-5447-8700
Address: 5-15-12 Minami-azabu, Minato-ku, Tokyo
License number: Governor of Tokyo License (1) No. 107013 / Member of the Ibaraki Prefecture Chapter of the All Japan Real Estate Association / Member of the Tokyo Metropolitan Area Real Estate Fair Trading Council













