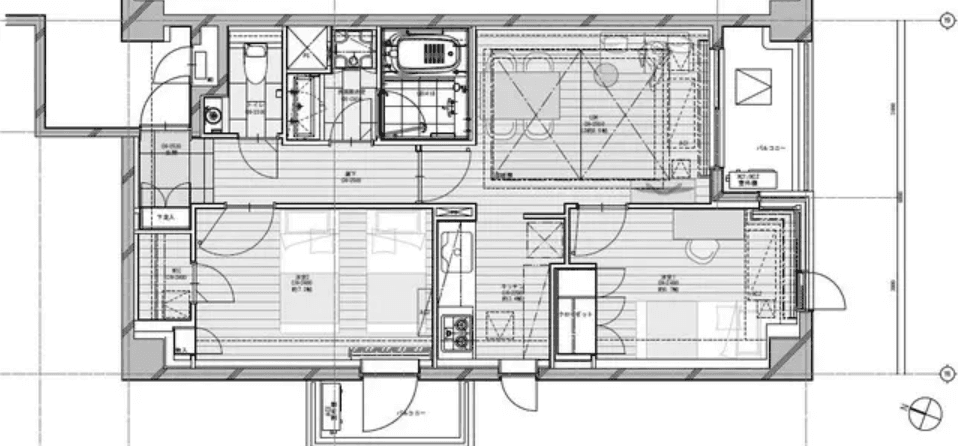
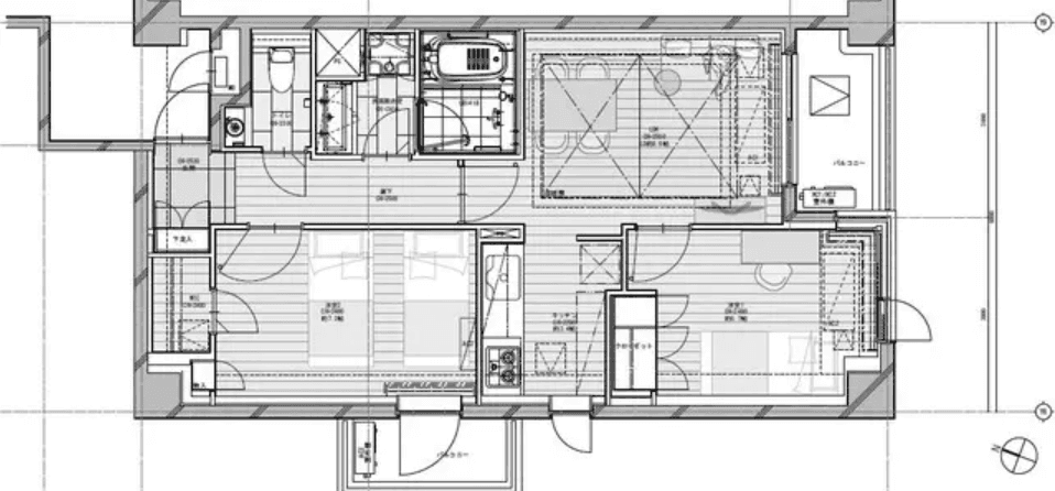
Welcome to unit 601 at NK Aoyama Homes, a beautifully designed 2LDK condo that spans 62.02 square meters. This sixth-floor retreat offers a seamless blend of comfort and functionality, perfect for modern living. Step inside to discover a spacious layout featuring a system kitchen equipped with a dishwasher, ideal for culinary enthusiasts. The separate washbasin and bathroom with a dryer enhance daily routines, while the walk-in closet provides ample storage. Enjoy cozy evenings with floor heating and air-conditioning, ensuring year-round comfort. A charming balcony invites you to unwind outdoors, while the building's concierge service adds a touch of luxury to your lifestyle. With convenient access to Nogizaka and Omote-sando stations just a short walk away, commuting and exploring the city is effortless. Experience the perfect balance of style and convenience in this exceptional apartment.
Listed by Tokyo Portfolio • Acting as intermediary
Listing updated: 2026-01-29
Around This Property
Nogizaka
7 min walk
- Chiyoda
Omote-sando
10 min walk
- Ginza
Roppongi
16 min walk
- Hibiya
Floor Plans & Monthly Fees

¥415,000
Priceper month
Including management fee (¥0)¥0
•
Insurance (¥0)
2
Beds
1
Baths
62.02
m²
*This is just a guide and may not accurately reflect what the total upfront fees will be. Some management companies will have other unique fees not accounted for here. We will always explain the full breakdown of upfront costs.
**If you have pets and this is a pet friendly property, expect to pay at least one additional month in security deposit.

More Units in This Building

NK Aoyama Homes
1999
Built
4
Units available
This property is listed by Tokyo Portfolio.
Phone: +81 (0)3-5447-8700
Address: 5-15-12 Minami-azabu, Minato-ku, Tokyo
License number: Governor of Tokyo License (1) No. 107013 / Member of the Ibaraki Prefecture Chapter of the All Japan Real Estate Association / Member of the Tokyo Metropolitan Area Real Estate Fair Trading Council













