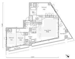
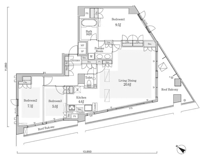
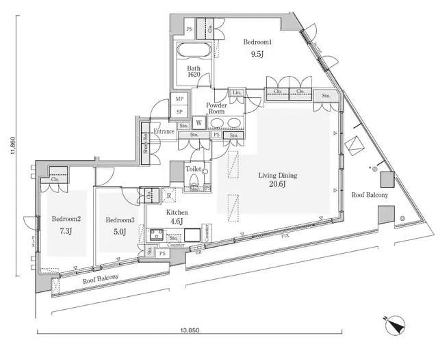
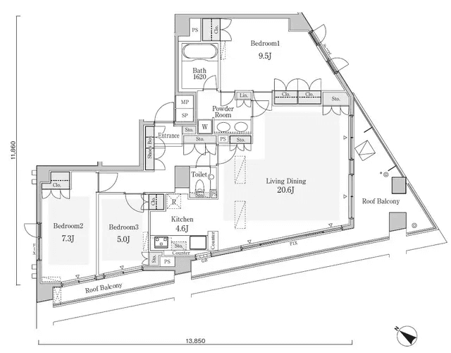
Discover the ultimate urban living at Orchid Residence Roppongi! This modern 3LDK apartment boasts a spacious layout of 105.11 m², designed for both comfort and style. Located just a 3-minute walk from the vibrant Roppongi station, residents enjoy immense convenience and easy access to Tokyo's cultural scene, dining, and nightlife. The apartment features contemporary amenities, including a fully equipped kitchen, air conditioning, and high-speed internet. Enjoy the luxury of living in a well-maintained building with top-notch facilities, including security and maintenance services. The surrounding neighborhood is rich in entertainment options and has parks for relaxation, making it a perfect choice for families and professionals. Don't miss out on this exceptional living experience in the heart of Tokyo!
Listed by Tokyo Portfolio • Acting as intermediary
Listing updated: 2026-01-16
Around This Property
Roppongi
3 min walk
- Hibiya
Roppongi-itchome
10 min walk
- Namboku
Nogizaka
13 min walk
- Chiyoda
Floor Plans & Monthly Fees

¥735,000
Priceper month
Including management fee (¥0)¥0
•
Insurance (¥0)
3
Beds
1
Baths
105.11
m²
*This is just a guide and may not accurately reflect what the total upfront fees will be. Some management companies will have other unique fees not accounted for here. We will always explain the full breakdown of upfront costs.
**If you have pets and this is a pet friendly property, expect to pay at least one additional month in security deposit.

This property is listed by Tokyo Portfolio.
Phone: +81 (0)3-5447-8700
Address: 5-15-12 Minami-azabu, Minato-ku, Tokyo
License number: Governor of Tokyo License (1) No. 107013 / Member of the Ibaraki Prefecture Chapter of the All Japan Real Estate Association / Member of the Tokyo Metropolitan Area Real Estate Fair Trading Council










