










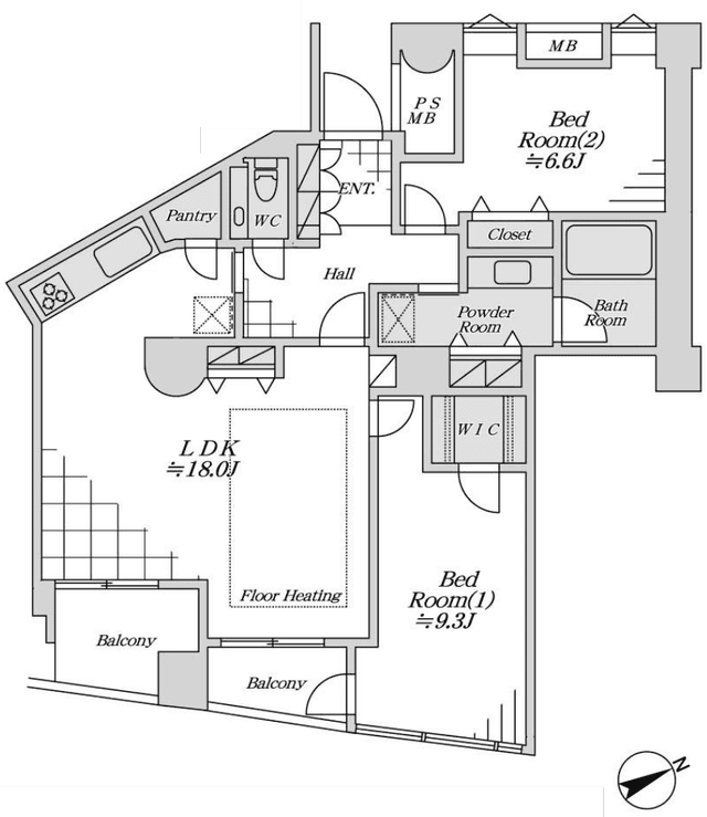
Welcome to a life of effortless sophistication at Shinagawa V Tower, where contemporary luxury meets unbeatable convenience. This 2-bedroom, 63.63㎡ unit is a masterclass in urban design, featuring radiant floor heating, sleek ceiling-integrated air conditioning, and a modern kitchen with a built-in garbage disposer. Every detail, from the grand hotel-style lobby to the secure entry system with video intercom, is crafted to elevate your daily experience. Located just a 6-minute walk from JR Shinagawa Station via a covered skyway, commuting is seamless—rain or shine. Shinagawa is a fast-rising hub of international business, fine dining, and waterfront serenity. With lush green pockets and access to bullet train lines, it appeals to professionals, couples, and families seeking balance between vibrant city life and relaxed refinement. Whether starting a new chapter or settling into long-term comfort, this residence offers both luxury and lasting value in one of Tokyo’s most connected nei...
Listed by Tokyo Portfolio • Acting as intermediary
Listing updated: 2025-05-31
Around This Property
Shinagawa
6 min walk
Keihin Tohoku Negishi- JobanRapid
Yokosuka
Yamanote- Tokaido
- Main
Floor Plans & Monthly Fees

¥330,000
Priceper month
Including management fee (-)¥0
•
Insurance (¥0)
2
Beds
1
Baths
63.63
m²

This property is listed by Tokyo Portfolio.
Phone: +81 (0)3-5447-8700
Address: 5-15-12 Minami-azabu, Minato-ku, Tokyo
License number: Governor of Tokyo License (1) No. 107013 / Member of the Ibaraki Prefecture Chapter of the All Japan Real Estate Association / Member of the Tokyo Metropolitan Area Real Estate Fair Trading Council


























