







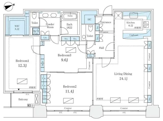
Tucked away in one of Tokyo’s most prestigious enclaves, this elegantly renovated 2LDK unit at Shuwa Kitaaoyama Residence masterfully blends timeless sophistication with modern comfort. Spanning 138.7㎡, the space is outfitted with curated designer furniture, floor heating, and high-end appliances—including an oven range, dishwasher, and water purifier—creating a seamless living experience from day one. With internet connectivity built in, it’s equally suited for stylish remote work or quiet leisure. Set in the serene, tree-lined streets of Kita-Aoyama, this neighborhood is synonymous with refined urban living. Steps from Omotesando’s boutiques and cafes, it’s ideal for creative professionals, design lovers, and international couples seeking culture, calm, and connectivity.
Listed by Tokyo Portfolio • Acting as intermediary
Listing updated: 2025-05-11
Around This Property
Omote-sando
4 min walk
- Hanzomon
- Chiyoda
- Ginza
The British School Tokyo (Shibuya)
Ages 3-18 years | Walk 8 mins by foot
Floor Plans & Monthly Fees

¥900,000
Priceper month
Including management fee (-)¥0
•
Insurance (¥0)
2
Beds
1
Baths
138.7
m²

This property is listed by Tokyo Portfolio.
Phone: +81 (0)3-5447-8700
Address: 5-15-12 Minami-azabu, Minato-ku, Tokyo
License number: Governor of Tokyo License (1) No. 107013 / Member of the Ibaraki Prefecture Chapter of the All Japan Real Estate Association / Member of the Tokyo Metropolitan Area Real Estate Fair Trading Council























