





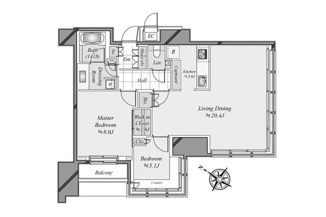
Experience refined urban living at THE ROPPONGI TOKYO CLUB RESIDENCE, a sophisticated 1LDK designed for comfort and convenience. Spanning 41.55㎡, this well-appointed unit features modern finishes, ample storage, and top-tier amenities. Large windows invite natural light, creating an airy ambiance perfect for professionals or those seeking a stylish city retreat. Residents enjoy access to premium shared facilities, including concierge services, a fitness center, and available parking. Nestled in the heart of Roppongi, this residence offers unrivaled access to world-class dining, luxury shopping, and vibrant nightlife. Ideal for those who appreciate convenience and an upscale lifestyle in Tokyo’s premier entertainment district.
Listed by Tokyo Portfolio • Acting as intermediary
Listing updated: 2025-02-21
Around This Property
Roppongi
3 min walk
- Oedo
- Hibiya
Roppongi-itchome
6 min walk
- Namboku
The British School Tokyo (Azabudai Hills)
Ages 3-18 years | By Car 5 mins by foot
Floor Plans & Monthly Fees

¥315,000
Priceper month
Including management fee (-)¥0
•
Insurance (¥0)
1
Beds
1
Baths
41.55
m²

More Units in This Building

THE ROPPONGI TOKYO CLUB RESIDENCE
2011
Built
4
Units on sale
This property is listed by Tokyo Portfolio.
Phone: +81 (0)3-5447-8700
Address: 5-15-12 Minami-azabu, Minato-ku, Tokyo
License number: Governor of Tokyo License (1) No. 107013 / Member of the Ibaraki Prefecture Chapter of the All Japan Real Estate Association / Member of the Tokyo Metropolitan Area Real Estate Fair Trading Council






























