








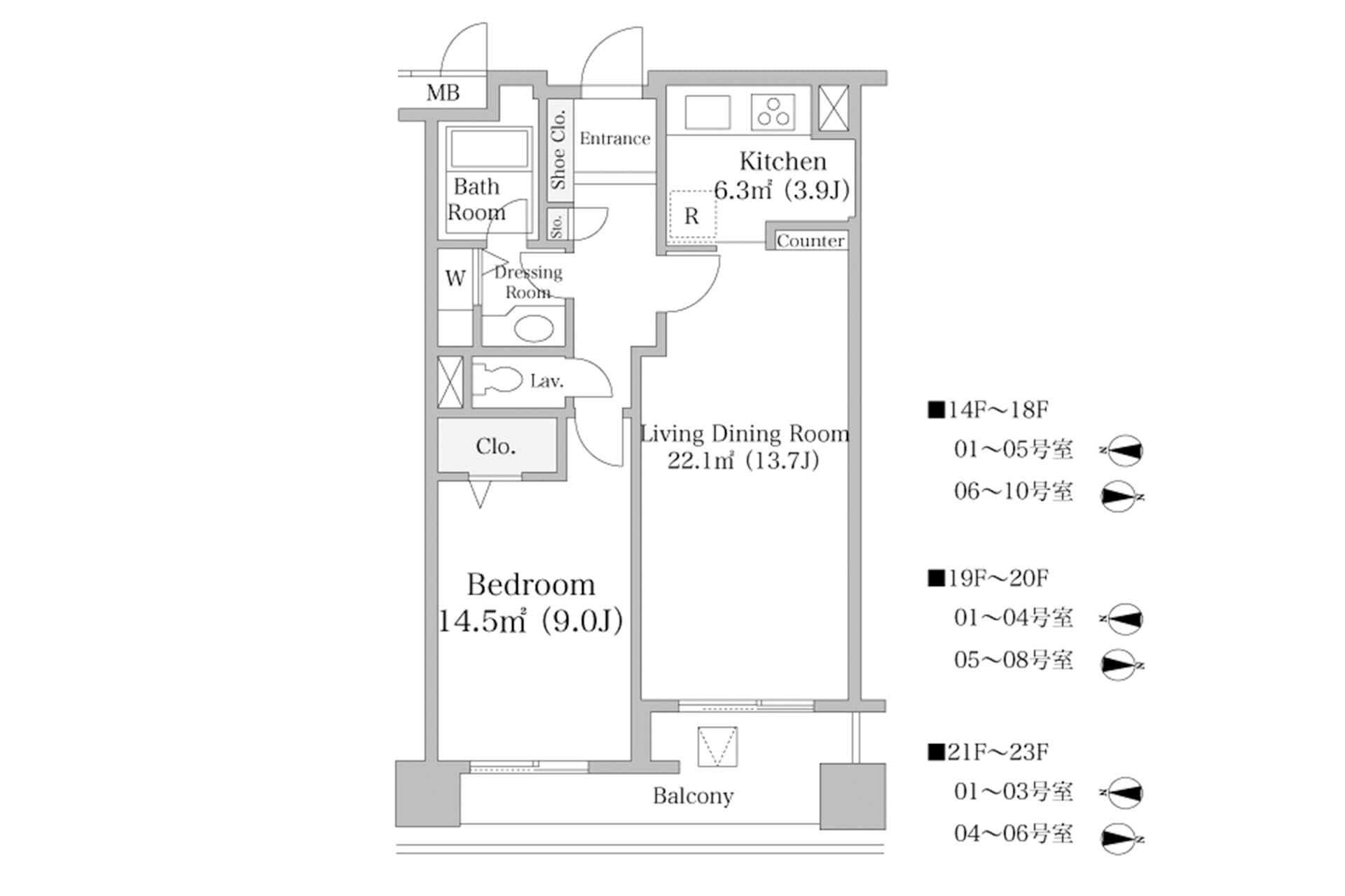
Rising with a distinctive triangular silhouette, YOKOSO RAINBOW TOWER HEIGHTS offers a rare blend of style and practicality in central Tokyo. This 63.45㎡ 1LDK unit features modern comforts including air conditioning, secure auto-lock entry, and 24-hour staffed management. A versatile layout welcomes pets and musical pursuits, while a balcony invites sunlight to fill the living space. Convenient amenities such as a delivery locker, parking, and bike storage enhance everyday ease. Nestled in a vibrant neighborhood, residents enjoy a lively urban rhythm with cafes, boutique shops, and cultural venues nearby. Ideal for professionals or creative singles, the location balances connectivity, convenience, and a dynamic city lifestyle.
Listed by Tokyo Portfolio • Acting as intermediary
Listing updated: 2025-08-15
Around This Property
Tamachi
14 min walk
Yamanote
Keihin Tohoku Negishi
Floor Plans & Monthly Fees

¥250,000
Priceper month
Including management fee (-)¥0
•
Insurance (¥0)
1
Beds
1
Baths
63.45
m²

More Units in This Building

YOKOSO RAINBOW TOWER HEIGHTS
1995
Built
1
Units on sale
This property is listed by Tokyo Portfolio.
Phone: +81 (0)3-5447-8700
Address: 5-15-12 Minami-azabu, Minato-ku, Tokyo
License number: Governor of Tokyo License (1) No. 107013 / Member of the Ibaraki Prefecture Chapter of the All Japan Real Estate Association / Member of the Tokyo Metropolitan Area Real Estate Fair Trading Council






















