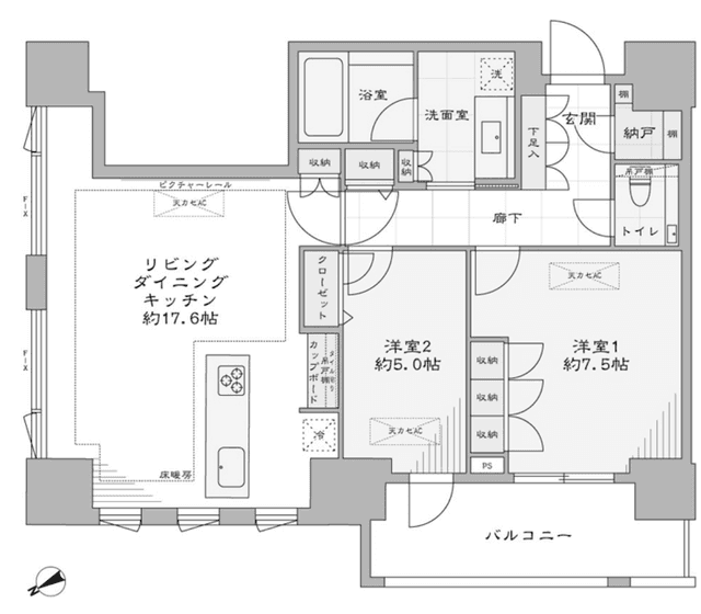
Nestled in the heart of vibrant Roppongi, Park Court Roppongi Hilltop embodies refined urban living with a touch of nature. This luxury condominium, developed by Mitsui Fudosan Residential, seamlessly blends contemporary elegance with timeless design. The unit features thoughtful layouts, from cozy 1LDKs for singles to spacious 3LDK options with walk-in closets and storage rooms, catering to diverse lifestyles. Impeccable 24-hour on-site management ensures unparalleled convenience and security, while select units welcome pets, making it an ideal sanctuary for all. The neighborhood offers a balance of cosmopolitan energy and tranquil greenery. Stroll to nearby Hinokicho Park or enjoy cherry blossoms along picturesque avenues. Families will appreciate proximity to top schools and playgrounds, while professionals can indulge in Roppongi’s fine dining, art museums, and dynamic nightlife. Perfect for those seeking a sophisticated lifestyle at Tokyo’s cultural crossroads.
Listed by Tokyo Portfolio • Acting as intermediary
Listing updated: 2026-03-21
Available Units
Around This Property
Roppongi-itchome
3 min walk
- Namboku
Kamiyacho
8 min walk
- Hibiya
This property is listed by Tokyo Portfolio.
Phone: +81 (0)3-5447-8700
Address: 5-15-12 Minami-azabu, Minato-ku, Tokyo
License number: Governor of Tokyo License (1) No. 107013 / Member of the Ibaraki Prefecture Chapter of the All Japan Real Estate Association / Member of the Tokyo Metropolitan Area Real Estate Fair Trading Council







