shibuya Apartments for Sale
127 properties (193 units)
127 properties (193 units)
Sort: Newest
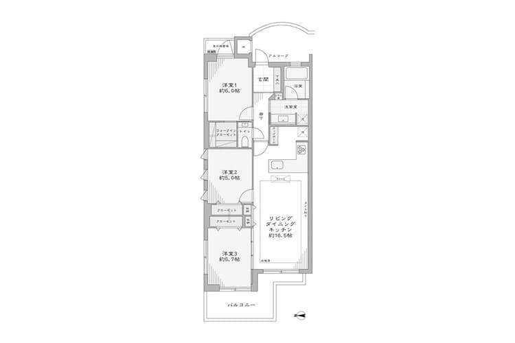
Yoyogi Royal Mansion
¥124,900,000
3 beds
79.11 m²
6 min from Yoyogi-Hachiman Station
Buy Your Dream Property in Tokyo
Tokyo's real estate market presents unique opportunities for both investors and homeowners, from sleek condominiums in Minato to traditional houses in Suginami. Whether you're a foreign investor eyeing high-yield properties in central Tokyo or a family searching for your forever home in residential areas like Meguro, our extensive listings showcase the full spectrum of Tokyo's property market.
The Tokyo property market offers remarkable stability and long-term growth potential. While central areas like Roppongi, Azabu, and Daikanyama feature premium properties with strong appreciation potential, emerging neighborhoods in eastern Tokyo offer excellent value and development prospects. Foreign buyers can purchase property in Japan without restrictions, though mortgage options vary depending on residency status and income sources.
Our property listings are updated in real-time and feature comprehensive details about building specifications, earthquake resistance ratings, management fees, and proximity to international schools. Use our advanced search tools to filter by property type, age, size, and amenities.
Ready to make your move? Explore our current listings above or connect with our experienced bilingual agents who guide both domestic and international buyers through every step of the purchase process.

































































































