








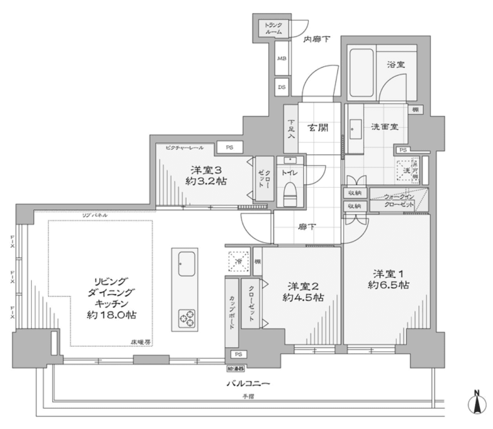
Set high on the 32nd floor, this three-bedroom residence at Brillia Tower Ueno Ikenohata spans 78.56 square meters, offering an elevated perspective over the city. The LDK layout creates a seamless flow for daily living, while three private rooms provide flexibility for families, guests, or a home office. An expansive 18.75 square meter balcony extends the living space, inviting open-air moments above the city. Clean finishes and a balanced floor plan support comfort, light, and long-term livability. Ikenohata is a culturally rich, green neighborhood anchored by Ueno Park, museums, and local cafés. Popular with families and professionals, it offers walkability, nature, and direct access to central Tokyo.
Listed by Tokyo Portfolio • Acting as intermediary
Listing updated: 2026-01-27
12 min walk



Property Price
Interest rate
The average interest rate for a 35-year fixed loan is 1.368%, while the average variable interest rate is 0.470%.
Loan term
Down payment (20%)¥0
Estimated closing fees (5-8%)
¥14,495,000 – ¥23,192,000
↳ Commission (3.3%) + ¥66,000¥9,632,700
TOTAL DUE AT CLOSE
¥14,495,000 – ¥23,192,000| Down payment (20%) | ¥0 |
| Estimated closing fees (5-8%) ↳ Commission (3.3%) + ¥66,000 | ¥14,495,000 – ¥23,192,000 ¥9,632,700 |
| TOTAL DUE AT CLOSE | ¥14,495,000 – ¥23,192,000 |
|---|
As some of these numbers are calculated using the government-assessed value of the property, the actual total upfront cost cannot be known. Generally speaking, we recommend clients prepare an additional 5–8% on top of the list price.
See here for more details
This property is listed by Tokyo Portfolio.
Phone: +81 (0)3-5447-8700
Address: 5-15-12 Minami-azabu, Minato-ku, Tokyo
License number: Governor of Tokyo License (1) No. 107013 / Member of the Ibaraki Prefecture Chapter of the All Japan Real Estate Association / Member of the Tokyo Metropolitan Area Real Estate Fair Trading Council