























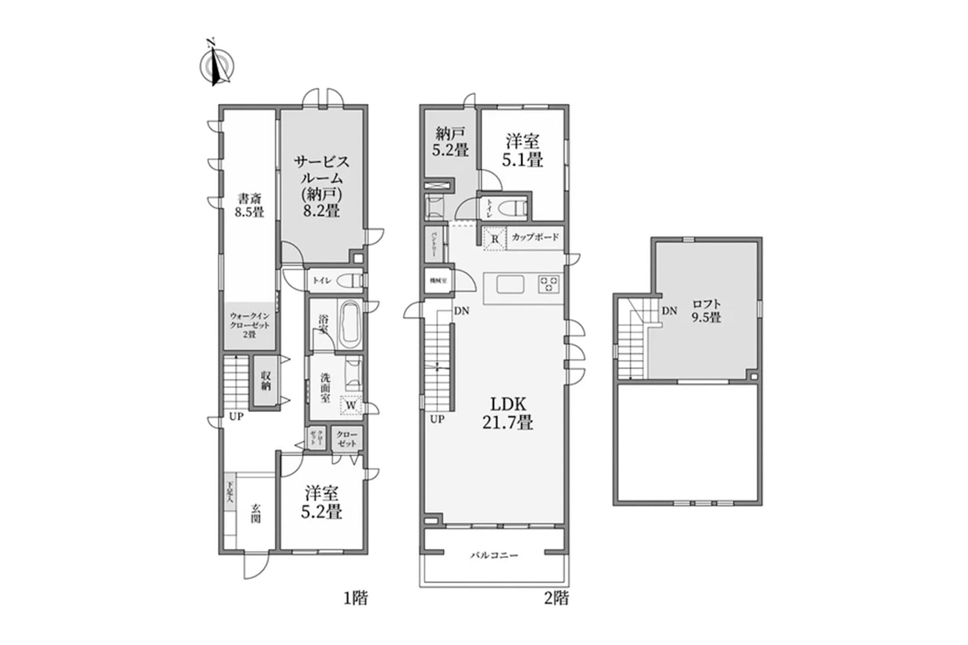
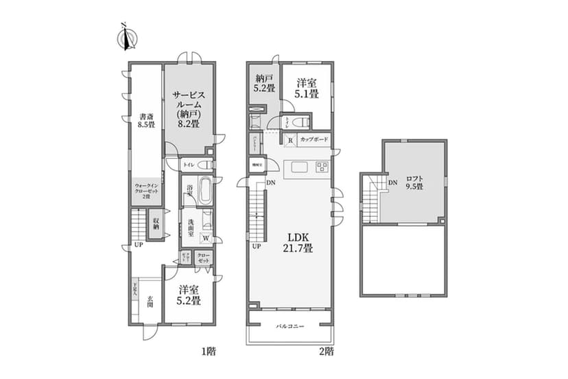
Nestled atop a gentle hill in Okusawa 6-chome, Setagaya, this modern 2LDK detached house combines contemporary design with serene comfort. Built in 2017 by Mitsui Home and recently refurbished, the home features a sun-drenched south-facing living area with soaring ceilings, creating an open, airy atmosphere. The counter kitchen allows effortless interaction with children while preparing meals, and a spacious loft adds versatility. Thoughtful storage solutions and a private car space complete the practical elegance of the home. Set within a quiet low-rise residential neighborhood, Okusawa offers peace without sacrificing convenience. Close to parks, local cafés, and top schools, it is perfect for families seeking a safe, community-oriented lifestyle while enjoying easy access to central Tokyo.
Listed by Tokyo Portfolio • Acting as intermediary
Listing updated: 2025-10-27
Payment Calculator

Property Price
approx. ¥239,000,000
Interest rate
The average interest rate for a 35-year fixed loan is 1.368%, while the average variable interest rate is 0.470%.
Loan term
Down payment (20%)¥0
Commission (3.3% + ¥66,000)¥7,953,000
Estimated closing fees (4%)
¥9,560,000
TOTAL DUE AT CLOSE
¥17,513,000| Down payment (20%) | - | ¥0 |
| Commission (3.3% + ¥66,000) | ¥7,953,000 | ¥7,953,000 |
| Estimated closing fees (4%) | ¥9,560,000 | ¥9,560,000 |
| TOTAL DUE AT CLOSE | ¥17,513,000 | ¥17,513,000 |
|---|
Policies
Pets allowed
Yes
Move-in date
-
Building management
Unstaffed
Management fee
-
Repair fund fee
-
Leasehold fees
-
This property is listed by Tokyo Portfolio.
Phone: +81 (0)3-5447-8700
Address: 5-15-12 Minami-azabu, Minato-ku, Tokyo
License number: Governor of Tokyo License (1) No. 107013 / Member of the Ibaraki Prefecture Chapter of the All Japan Real Estate Association / Member of the Tokyo Metropolitan Area Real Estate Fair Trading Council
























