





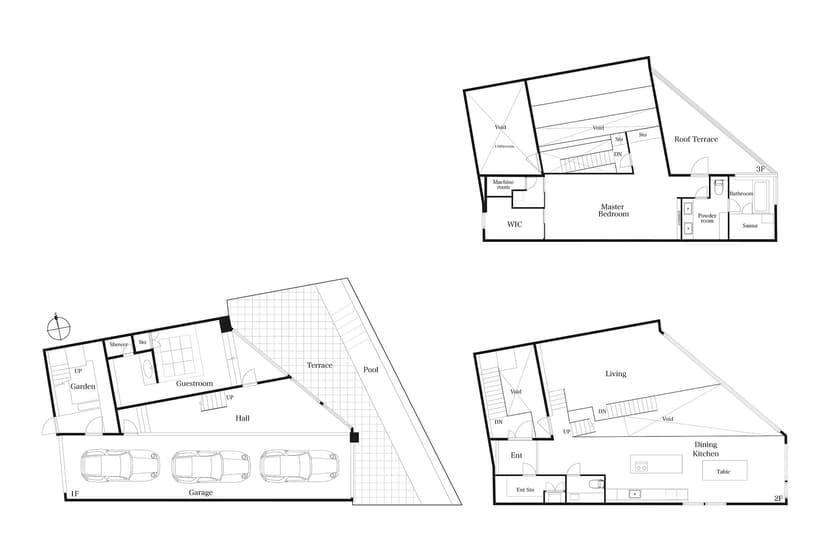
Nestled atop the historic hills of Yamate-cho in Yokohama’s Naka Ward, this newly built 3-story steel-frame residence redefines modern luxury. Spanning 288.41㎡, the home centers around a striking open staircase, connecting expansive living and dining spaces with natural flow and light. A serene terrace with an infinity pool invites sunset views over the city, while the private sauna and view bath promise moments of indulgent relaxation. Every detail, from the single-slab Jindaisugi dining table to the basalt-accented entryway, exudes craftsmanship and elegance. Set in one of Yokohama’s most refined neighborhoods, Yamate blends international heritage with quiet sophistication. Surrounded by leafy promenades, international schools, and seaside cafés, it’s an ideal haven for cosmopolitan families and professionals seeking privacy, beauty, and balance near the heart of the city.
Listed by Tokyo Portfolio • Acting as intermediary
Listing updated: 2025-10-20
Payment Calculator

Property Price
approx. ¥598,000,000
Interest rate
The average interest rate for a 35-year fixed loan is 1.368%, while the average variable interest rate is 0.470%.
Loan term
Down payment (20%)¥0
Commission (3.3% + ¥66,000)¥19,800,000
Estimated closing fees (4%)
¥23,920,000
TOTAL DUE AT CLOSE
¥43,720,000| Down payment (20%) | - | ¥0 |
| Commission (3.3% + ¥66,000) | ¥19,800,000 | ¥19,800,000 |
| Estimated closing fees (4%) | ¥23,920,000 | ¥23,920,000 |
| TOTAL DUE AT CLOSE | ¥43,720,000 | ¥43,720,000 |
|---|
Policies
Pets allowed
Yes
Move-in date
-
Building management
Unstaffed
Management fee
-
Repair fund fee
-
Leasehold fees
-
This property is listed by Tokyo Portfolio.
Phone: +81 (0)3-5447-8700
Address: 5-15-12 Minami-azabu, Minato-ku, Tokyo
License number: Governor of Tokyo License (1) No. 107013 / Member of the Ibaraki Prefecture Chapter of the All Japan Real Estate Association / Member of the Tokyo Metropolitan Area Real Estate Fair Trading Council
































