






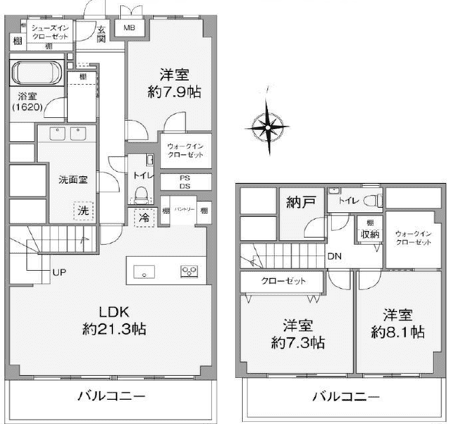
Bathed in natural light from three exposures—south, east, and north—this 10th-floor corner unit in Hiroo Mansion offers elevated serenity above the city. Spanning 87.92㎡, the thoughtfully renovated 2LDK layout features a counter kitchen equipped with a dishwasher, water purifier, and abundant storage throughout. Cleverly designed with smooth household flow in mind, storage solutions are accessible not only from the bedrooms but also discreetly from the hallway. A bonus 3.54㎡ trunk room on the second floor provides additional space at no extra cost. Nestled in Hiroo, one of Tokyo’s most refined residential areas, this location is beloved for its quiet charm, proximity to international schools, and tree-lined streets. Popular with global professionals and small families, the neighborhood blends upscale cafés, gourmet supermarkets, and parks like Arisugawa with easy access to central Tokyo—making it ideal for those seeking comfort and cosmopolitan convenience.
Listed by Tokyo Portfolio • Acting as intermediary
Listing updated: 2025-07-28
Around This Property
Ebisu
9 min walk
- ShonanShinjuku
Yamanote- Saikyo Kawagoe
- Hibiya
Hiro-o
9 min walk
- Hibiya
Payment Calculator

Property Price
approx. ¥135,800,000
Interest rate
The average interest rate for a 35-year fixed loan is 1.368%, while the average variable interest rate is 0.470%.
Loan term
Down payment (20%)¥0
Commission (3.3% + ¥66,000)¥4,547,400
Estimated closing fees (4%)
¥5,432,000
TOTAL DUE AT CLOSE
¥9,979,400| Down payment (20%) | - | ¥0 |
| Commission (3.3% + ¥66,000) | ¥4,547,400 | ¥4,547,400 |
| Estimated closing fees (4%) | ¥5,432,000 | ¥5,432,000 |
| TOTAL DUE AT CLOSE | ¥9,979,400 | ¥9,979,400 |
|---|
More Units in This Building

Hiroo Mansion
1970
Built
2
Units on sale
This property is listed by Tokyo Portfolio.
Phone: +81 (0)3-5447-8700
Address: 5-15-12 Minami-azabu, Minato-ku, Tokyo
License number: Governor of Tokyo License (1) No. 107013 / Member of the Ibaraki Prefecture Chapter of the All Japan Real Estate Association / Member of the Tokyo Metropolitan Area Real Estate Fair Trading Council






































