














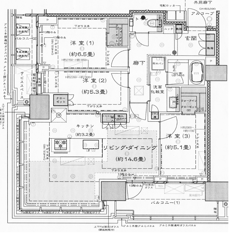
Welcome to unit 17F in Proud Tower Shibaura, a stunning 3LDK condo that redefines modern living. Spanning 79.07 sqm, this spacious residence offers a seamless flow between living, dining, and kitchen areas, perfect for both relaxation and entertaining. Enjoy the convenience of a well-appointed kitchen featuring a dishwasher, while the separate bathroom and toilet enhance functionality. The underfloor heating ensures comfort throughout the seasons, and the walk-in closet provides ample storage for your belongings. Step out onto your private balcony to take in the views and unwind after a long day. Located just an 11-minute walk from Tamachi Station, commuting is a breeze, with easy access to the JR East and Toei Mita lines. Experience the perfect blend of comfort and convenience in this exceptional apartment.
Listed by Tokyo Portfolio • Acting as intermediary
Listing updated: 2026-02-17
11 min walk


13 min walk

Property Price
Interest rate
The average interest rate for a 35-year fixed loan is 1.368%, while the average variable interest rate is 0.470%.
Loan term
Down payment (20%)¥0
Estimated closing fees (5-8%)
¥13,000,000 – ¥20,800,000
↳ Commission (3.3%) + ¥66,000¥8,646,000
TOTAL DUE AT CLOSE
¥13,000,000 – ¥20,800,000| Down payment (20%) | ¥0 |
| Estimated closing fees (5-8%) ↳ Commission (3.3%) + ¥66,000 | ¥13,000,000 – ¥20,800,000 ¥8,646,000 |
| TOTAL DUE AT CLOSE | ¥13,000,000 – ¥20,800,000 |
|---|
As some of these numbers are calculated using the government-assessed value of the property, the actual total upfront cost cannot be known. Generally speaking, we recommend clients prepare an additional 5–8% on top of the list price.
See here for more details

Proud Tower Shibaura
2023
Built
4
Units on sale
This property is listed by Tokyo Portfolio.
Phone: +81 (0)3-5447-8700
Address: 5-15-12 Minami-azabu, Minato-ku, Tokyo
License number: Governor of Tokyo License (1) No. 107013 / Member of the Ibaraki Prefecture Chapter of the All Japan Real Estate Association / Member of the Tokyo Metropolitan Area Real Estate Fair Trading Council