








Perched in the heart of Meguro, this elegant 2LDK residence at MFP Meguro Tower spans 64.34㎡, offering a harmonious blend of comfort and modern convenience. The unit features thoughtfully curated amenities, from a fully equipped kitchen to climate-controlled interiors, designed for effortless city living. Pet-friendly policies allow your companions to enjoy the space alongside you, while the serene atmosphere provides a retreat from the urban pace. Meguro is celebrated for its leafy streets, boutique cafes, and family-friendly parks, making it ideal for professionals, couples, or small families seeking balance between vibrant city life and tranquil residential charm. With easy access to central Tokyo, residents enjoy both connectivity and quiet sophistication.
Listed by Tokyo Portfolio • Acting as intermediary
Listing updated: 2025-09-25
Around This Property
Meguro
7 min walk
Yamanote
Fudo-mae
17 min walk
- Meguro
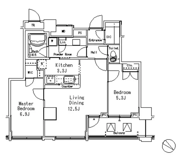
Floor Plans & Monthly Fees

¥460,000
Priceper month
Including management fee (-)¥0
•
Insurance (¥0)
2
Beds
1
Baths
64.34
m²

More Units in This Building

MFPR Meguro Tower
2008
Built
2
Units on sale
This property is listed by Tokyo Portfolio.
Phone: +81 (0)3-5447-8700
Address: 5-15-12 Minami-azabu, Minato-ku, Tokyo
License number: Governor of Tokyo License (1) No. 107013 / Member of the Ibaraki Prefecture Chapter of the All Japan Real Estate Association / Member of the Tokyo Metropolitan Area Real Estate Fair Trading Council


























