










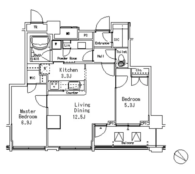
Perched in the heart of Meguro, this spacious 3LDK unit in MFP Meguro Tower spans 215.87㎡, blending comfort with sophisticated urban living. The home boasts a thoughtfully designed layout, premium fixtures, and modern amenities, creating a seamless balance of style and practicality. Natural light fills the expansive living spaces, while high-quality finishes enhance everyday life. Pet-friendly policies allow your four-legged companions to share in this elevated lifestyle. Situated in a calm, welcoming neighborhood near Meguro Station, the area is prized for its leafy streets, local cafes, and cultural spots. Ideal for families and professionals seeking tranquility without compromising city access, it offers a perfect blend of convenience and serenity.
Listed by Tokyo Portfolio • Acting as intermediary
Listing updated: 2025-09-25
Around This Property
Meguro
7 min walk
Yamanote
Fudo-mae
17 min walk
- Meguro
Floor Plans & Monthly Fees

¥2,000,000
Priceper month
Including management fee (-)¥0
•
Insurance (¥0)
3
Beds
1
Baths
215.87
m²

More Units in This Building

MFPR Meguro Tower
2008
Built
2
Units on sale
This property is listed by Tokyo Portfolio.
Phone: +81 (0)3-5447-8700
Address: 5-15-12 Minami-azabu, Minato-ku, Tokyo
License number: Governor of Tokyo License (1) No. 107013 / Member of the Ibaraki Prefecture Chapter of the All Japan Real Estate Association / Member of the Tokyo Metropolitan Area Real Estate Fair Trading Council


























