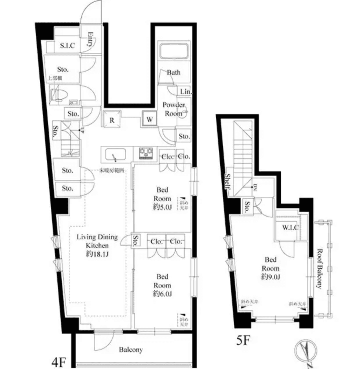
Welcome to 343 Residence Nishi-Azabu, where comfort meets functionality in unit 0501. This spacious 3LDK condo spans 98.5 square meters, offering a thoughtfully designed layout that seamlessly integrates living, dining, and kitchen spaces. The system kitchen, equipped with a reheating function, invites culinary creativity, while the separate washbasin and bathroom dryer enhance daily routines. Enjoy the luxury of a walk-in closet and the convenience of a separate bathroom and toilet, complete with a bidet. Floor heating ensures warmth during colder months, and the balcony provides a serene outdoor escape. Located just an 8-minute walk from Hiro-o Station and within easy reach of Roppongi and Azabu-juban stations, this residence offers excellent connectivity. With amenities like a 24-hour ventilation system and bicycle parking, your lifestyle here is both comfortable and convenient. Experience the perfect blend of modern living in this inviting corner unit.
Listed by Tokyo Portfolio • Acting as intermediary
Listing updated: 2026-04-07
Around This Property
Hiro-o
8 min walk
- Hibiya
Roppongi
10 min walk
- Hibiya
Azabu-juban
11 min walk
- Namboku
Floor Plans & Monthly Fees

¥780,000
Priceper month
Including management fee (¥20,000)¥20,000
•
Insurance (¥0)
3
Beds
1
Baths
98.5
m²
*This is just a guide and may not accurately reflect what the total upfront fees will be. Some management companies will have other unique fees not accounted for here. We will always explain the full breakdown of upfront costs.
**If you have pets and this is a pet friendly property, expect to pay at least one additional month in security deposit.

This property is listed by Tokyo Portfolio.
Phone: +81 (0)3-5447-8700
Address: 5-15-12 Minami-azabu, Minato-ku, Tokyo
License number: Governor of Tokyo License (1) No. 107013 / Member of the Ibaraki Prefecture Chapter of the All Japan Real Estate Association / Member of the Tokyo Metropolitan Area Real Estate Fair Trading Council











