











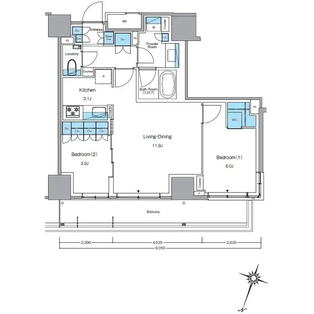
Perched on the 18th floor, this 2LDK sanctuary at Le Fons Progre Shibuya Hilltop offers 59.59 m² of refined urban living, where sunlight floods the open living-dining space and panoramic city views stretch to the horizon. Modern finishes and thoughtful design create a seamless flow, perfect for both quiet evenings and lively gatherings. Nestled in the vibrant heart of Shibuya, residents enjoy easy access to boutique cafés, artisanal dining, and cultural hotspots. Ideal for young professionals or small families, the neighborhood combines convenience, style, and a dynamic city lifestyle, making every day feel distinctly Tokyo. Step into comfort, elegance, and unmatched city energy.
Listed by Tokyo Portfolio • Acting as intermediary
Listing updated: 2025-10-12
Around This Property
Shinsen
7 min walk
- Inokashira
Ikejiriohashi
10 min walk
- Den En Toshi
Floor Plans & Monthly Fees

¥456,000
Priceper month
Including management fee (-)¥0
•
Insurance (¥0)
2
Beds
1
Baths
59.59
m²

More Units in This Building

Le Fons Progre Shibuya Hilltop
2022
Built
3
Units on sale
This property is listed by Tokyo Portfolio.
Phone: +81 (0)3-5447-8700
Address: 5-15-12 Minami-azabu, Minato-ku, Tokyo
License number: Governor of Tokyo License (1) No. 107013 / Member of the Ibaraki Prefecture Chapter of the All Japan Real Estate Association / Member of the Tokyo Metropolitan Area Real Estate Fair Trading Council























