













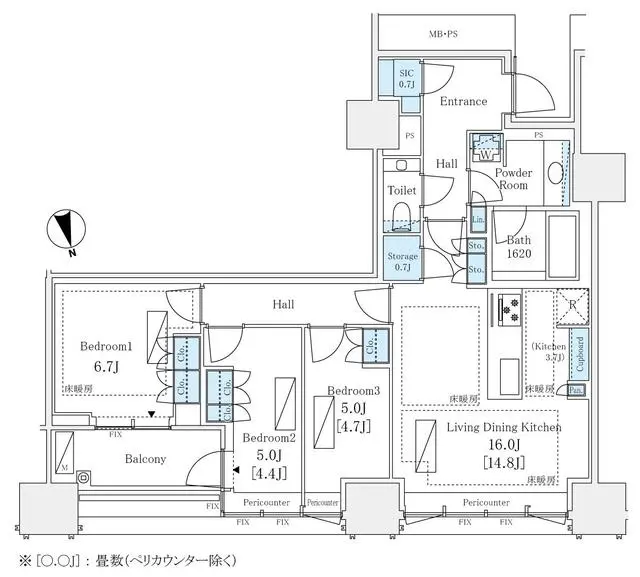
Elevated on the 8th floor, this 82.99 m² 3LDK residence in Mita Garden Hills North Hill opens into a generous living–dining space framed by wide windows and soft natural light. Three well-sized bedrooms offer rare flexibility — a dedicated study, a cozy nursery, or a serene retreat for each family member. Outside your door, Mita’s refined, residential character unfolds. Lined with quiet streets, international schools, leafy parks, and understated cafés, the neighborhood attracts families, professionals, and long-term residents who value safety, greenery, and a calm atmosphere just moments from central Tokyo. Weekend strolls to Keio University’s campus paths or nearby temples add a timeless charm to daily life. As dusk settles, the apartment becomes a warm sanctuary — a private, elevated haven where comfort, space, and an enduring sense of community come together effortlessly.
Listed by Tokyo Portfolio • Acting as intermediary
Listing updated: 2025-12-05
Around This Property
Azabu-juban
5 min walk
- Oedo
Shibakoen
12 min walk
- Mita
Akabanebashi
6 min walk
- Oedo
Floor Plans & Monthly Fees

¥850,000
Priceper month
Including management fee (-)¥0
•
Insurance (¥0)
3
Beds
1
Baths
82.99
m²

This property is listed by Tokyo Portfolio.
Phone: +81 (0)3-5447-8700
Address: 5-15-12 Minami-azabu, Minato-ku, Tokyo
License number: Governor of Tokyo License (1) No. 107013 / Member of the Ibaraki Prefecture Chapter of the All Japan Real Estate Association / Member of the Tokyo Metropolitan Area Real Estate Fair Trading Council

























