Welcome to La Tour Shinjuku Garden, a striking 37-story condominium located in the vibrant heart of Tokyo's Shinjuku district. Completed in 2016, this modern building boasts a sleek architectural design that harmonizes with its urban surroundings. Residents enjoy a host of amenities, including a concierge service, fitness room, and dedicated spaces for children and pets. With 24-hour security and disaster preparedness features, peace of mind is paramount. The neighborhood offers a dynamic lifestyle, with easy access to Takadanobaba and Nishi-Waseda stations, both within a short walk. This area is known for its lively atmosphere, featuring a mix of local eateries, shops, and parks, making it ideal for families, professionals, and students alike. Experience the best of city living at La Tour Shinjuku Garden.
Listed by Tokyo Portfolio • Acting as intermediary
Listing updated: 2026-04-15
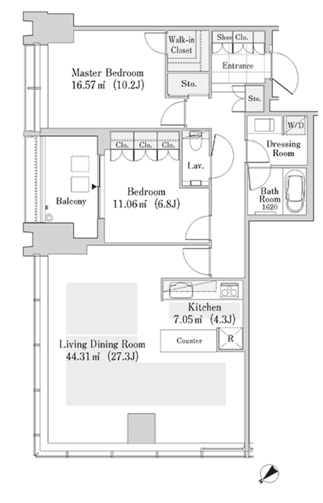
Available Units
Around This Property
Takadanobaba
7 min walk
Yamanote- Shinjuku
Nishi-waseda
9 min walk
- Fukutoshin
This property is listed by Tokyo Portfolio.
Phone: +81 (0)3-5447-8700
Address: 5-15-12 Minami-azabu, Minato-ku, Tokyo
License number: Governor of Tokyo License (1) No. 107013 / Member of the Ibaraki Prefecture Chapter of the All Japan Real Estate Association / Member of the Tokyo Metropolitan Area Real Estate Fair Trading Council




