









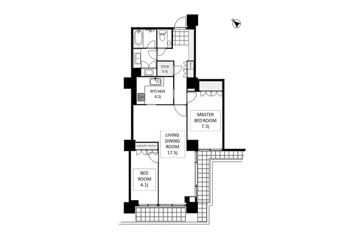
Nestled within Roppongi First Plaza, this elegant 2LDK residence spans 85.19㎡, offering a rare blend of space, comfort, and convenience in central Tokyo. Sunlit interiors flow seamlessly, while thoughtful features such as a secure auto-lock system, trunk room, and dedicated parking ensure peace of mind. With pet- and instrument-friendly policies, the home adapts effortlessly to modern lifestyles, whether for quiet evenings or vibrant entertaining. The surrounding Roppongi neighborhood is renowned for its cosmopolitan energy, blending Michelin-starred dining, luxury boutiques, and world-class art museums. Yet, leafy promenades and nearby parks add a balance of calm. Ideal for professionals or couples seeking an international, dynamic environment with a touch of tranquility.
Listed by Tokyo Portfolio • Acting as intermediary
Listing updated: 2025-08-21
Around This Property
Roppongi-itchome
5 min walk
- Namboku
Kamiyacho
5 min walk
- Hibiya
The British School Tokyo (Azabudai Hills)
Ages 3-18 years | Walk 3 mins by foot
Floor Plans & Monthly Fees

¥619,000
Priceper month
Including management fee (-)¥0
•
Insurance (¥0)
2
Beds
1
Baths
85.19
m²

This property is listed by Tokyo Portfolio.
Phone: +81 (0)3-5447-8700
Address: 5-15-12 Minami-azabu, Minato-ku, Tokyo
License number: Governor of Tokyo License (1) No. 107013 / Member of the Ibaraki Prefecture Chapter of the All Japan Real Estate Association / Member of the Tokyo Metropolitan Area Real Estate Fair Trading Council













