











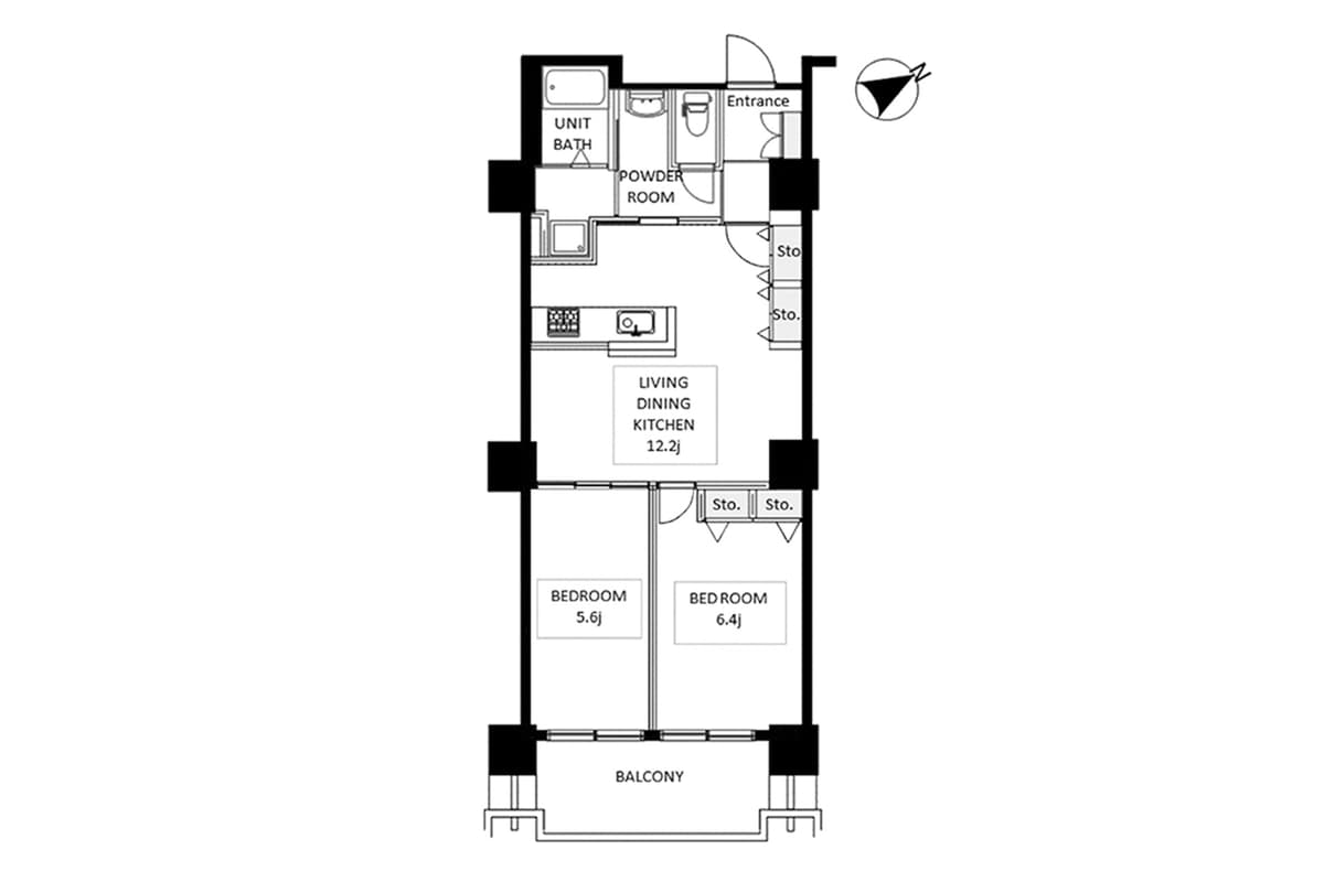
High above the city, Roppongi View Tower presents a refined 2LDK residence spanning 57.93㎡, designed for those who value both comfort and convenience. Large windows frame serene green surroundings, bringing light and calm into the living space. Thoughtful details, from modern finishes to an efficient layout, create a home that feels both stylish and welcoming. The location is unparalleled—nestled beside the evolving Azabu district while within walking distance of Roppongi and Toranomon. Here, Michelin-starred dining, international schools, and cultural landmarks blend seamlessly with quiet parks. Perfect for professionals or couples, it offers a lifestyle that balances energy with tranquility.
Listed by Tokyo Portfolio • Acting as intermediary
Listing updated: 2025-09-14
Around This Property
- Roppongi-itchome- 6 min walk - Namboku
 
Floor Plans & Monthly Fees

¥399,000
Priceper month
Including management fee (-)¥0
•
Insurance (¥0)
2
Beds
1
Baths
57.93
m²

More Units in This Building

Roppongi View Tower
1993
Built
4
Units on sale
This property is listed by Tokyo Portfolio.
Phone: +81 (0)3-5447-8700
Address: 5-15-12 Minami-azabu, Minato-ku, Tokyo
License number: Governor of Tokyo License (1) No. 107013 / Member of the Ibaraki Prefecture Chapter of the All Japan Real Estate Association / Member of the Tokyo Metropolitan Area Real Estate Fair Trading Council

















