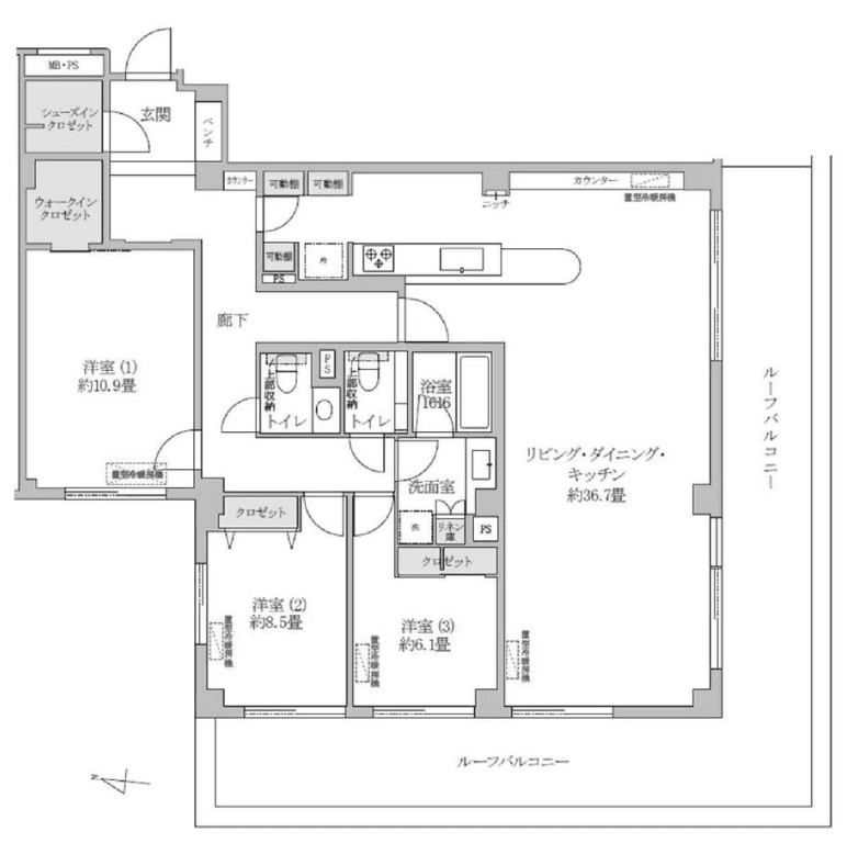
Situated on the 5th floor of Akasaka Grand House, this 3LDK residence offers an expansive 144.89㎡ layout complemented by a remarkable 40.21㎡ balcony. Sunlight pours through wide windows, illuminating a sophisticated living space where design and functionality meet. With three generously sized bedrooms and two bathrooms, the home provides privacy and comfort, ideal for both families and professionals seeking modern luxury. The Akasaka neighborhood is a vibrant fusion of culture and convenience. Known for its world-class dining, stylish cafés, and historic landmarks, it attracts both international residents and locals. Tree-lined streets and nearby green spaces create a calm atmosphere, while the bustling nightlife and shopping scene add an energetic balance. Families will appreciate the welcoming community, and professionals will find easy access to central business hubs.
Listed by Tokyo Portfolio • Acting as intermediary
Listing updated: 2025-09-14
Around This Property
Nogizaka
min walk
- Chiyoda
Roppongi
min walk
- Oedo
- Hibiya
Aoyama-itchome
min walk
- Oedo
- Ginza
- Hanzomon
Payment Calculator

Property Price
Interest rate
The average interest rate for a 35-year fixed loan is 1.368%, while the average variable interest rate is 0.470%.
Loan term
Down payment (20%)¥0
Estimated closing fees (5-8%)
¥18,400,000 – ¥29,440,000
↳ Commission (3.3%) + ¥66,000¥12,210,000
TOTAL DUE AT CLOSE
¥18,400,000 – ¥29,440,000| Down payment (20%) | ¥0 |
| Estimated closing fees (5-8%) ↳ Commission (3.3%) + ¥66,000 | ¥18,400,000 – ¥29,440,000 ¥12,210,000 |
| TOTAL DUE AT CLOSE | ¥18,400,000 – ¥29,440,000 |
|---|
As some of these numbers are calculated using the government-assessed value of the property, the actual total upfront cost cannot be known. Generally speaking, we recommend clients prepare an additional 5–8% on top of the list price.
See here for more details
This property is listed by Tokyo Portfolio.
Phone: +81 (0)3-5447-8700
Address: 5-15-12 Minami-azabu, Minato-ku, Tokyo
License number: Governor of Tokyo License (1) No. 107013 / Member of the Ibaraki Prefecture Chapter of the All Japan Real Estate Association / Member of the Tokyo Metropolitan Area Real Estate Fair Trading Council



















