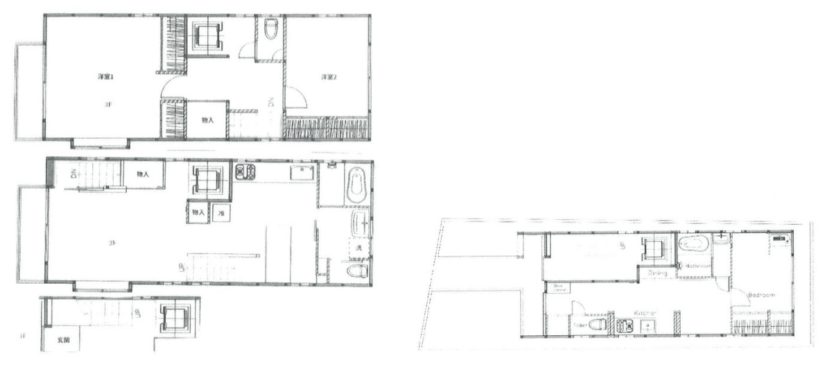
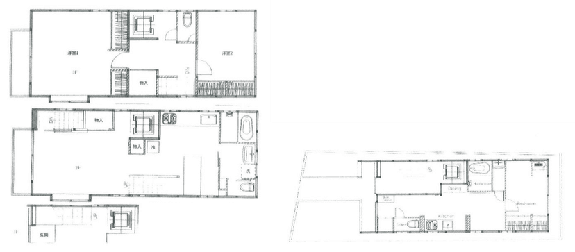
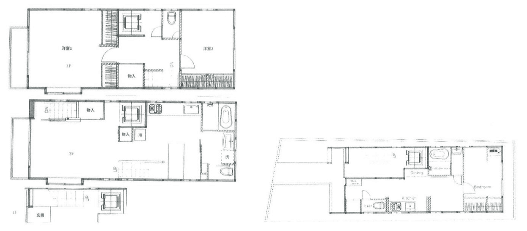
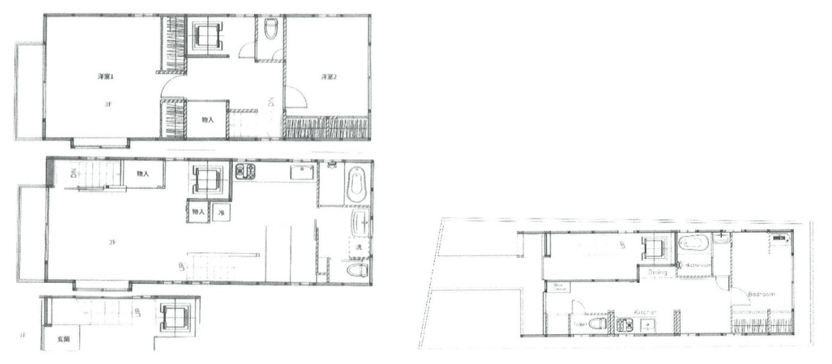
This expansive three-bedroom LDK residence in Akasaka offers 120.46 square meters of refined living space designed for comfort, privacy, and flexibility. Generous living and dining areas create an inviting setting for gatherings, while three well-proportioned rooms and two bathrooms support effortless daily routines for families or professionals. The layout encourages a calm, spacious rhythm rarely found in central Tokyo homes. Akasaka is a distinguished Minato neighborhood known for its elegant streets, international restaurants, and cultural institutions. Popular with executives, diplomats, and families, it offers excellent access to business districts, green spaces, and top schools, blending prestige, convenience, and a quietly sophisticated residential atmosphere.
Listed by Tokyo Portfolio • Acting as intermediary
Listing updated: 2026-01-14
Around This Property
Akasaka-mitsuke
8 min walk
- Ginza
- Marunouchi
Akasaka
6 min walk
- Chiyoda
Payment Calculator

Property Price
Interest rate
The average interest rate for a 35-year fixed loan is 1.368%, while the average variable interest rate is 0.470%.
Loan term
Down payment (20%)¥0
Estimated closing fees (5-8%)
¥14,500,000 – ¥23,200,000
↳ Commission (3.3%) + ¥66,000¥9,636,000
TOTAL DUE AT CLOSE
¥14,500,000 – ¥23,200,000| Down payment (20%) | ¥0 |
| Estimated closing fees (5-8%) ↳ Commission (3.3%) + ¥66,000 | ¥14,500,000 – ¥23,200,000 ¥9,636,000 |
| TOTAL DUE AT CLOSE | ¥14,500,000 – ¥23,200,000 |
|---|
As some of these numbers are calculated using the government-assessed value of the property, the actual total upfront cost cannot be known. Generally speaking, we recommend clients prepare an additional 5–8% on top of the list price.
See here for more details
This property is listed by Tokyo Portfolio.
Phone: +81 (0)3-5447-8700
Address: 5-15-12 Minami-azabu, Minato-ku, Tokyo
License number: Governor of Tokyo License (1) No. 107013 / Member of the Ibaraki Prefecture Chapter of the All Japan Real Estate Association / Member of the Tokyo Metropolitan Area Real Estate Fair Trading Council







