









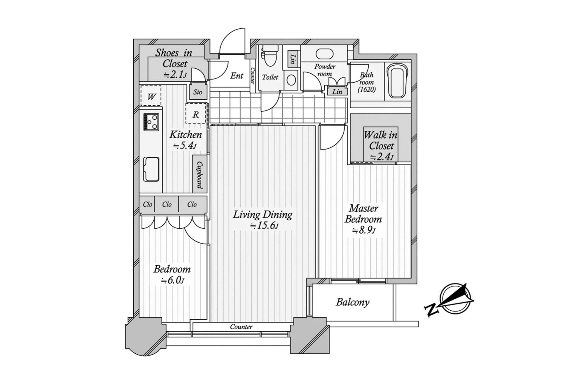
Perched on the 17th floor of Aoyama Park Tower, this elegant 2LDK residence spans 85.86㎡ and captures sweeping northwest city views framed by abundant natural light. The open-plan living and kitchen areas feature floor heating for year-round comfort, while Miele appliances, a water purifier, and a disposer enhance everyday ease. Generous storage—including a walk-in and shoe-in closet—adds seamless functionality, complemented by a private trunk room for extra space. Located in one of Tokyo’s most coveted addresses, Aoyama blends urban sophistication with calm greenery. Steps from fashionable boutiques, fine dining, and Aoyama Cemetery’s serene paths, it’s ideal for professionals and families seeking refined city living with tranquility.
Listed by Tokyo Portfolio • Acting as intermediary
Listing updated: 2025-11-06
Around This Property
Shibuya
5 min walk
Yamanote- ShonanShinjuku
- Saikyo Kawagoe
- Inokashira
- Fukutoshin
- Hanzomon
- Ginza
- Toyoko
- Den En Toshi
Omote-sando
10 min walk
- Ginza
- Chiyoda
- Hanzomon
Payment Calculator

Property Price
approx. ¥358,000,000
Interest rate
The average interest rate for a 35-year fixed loan is 1.368%, while the average variable interest rate is 0.470%.
Loan term
Down payment (20%)¥0
Commission (3.3% + ¥66,000)¥11,880,000
Estimated closing fees (4%)
¥14,320,000
TOTAL DUE AT CLOSE
¥26,200,000| Down payment (20%) | - | ¥0 |
| Commission (3.3% + ¥66,000) | ¥11,880,000 | ¥11,880,000 |
| Estimated closing fees (4%) | ¥14,320,000 | ¥14,320,000 |
| TOTAL DUE AT CLOSE | ¥26,200,000 | ¥26,200,000 |
|---|
More Units in This Building

Aoyama Park Tower
2003
Built
7
Units on sale
This property is listed by Tokyo Portfolio.
Phone: +81 (0)3-5447-8700
Address: 5-15-12 Minami-azabu, Minato-ku, Tokyo
License number: Governor of Tokyo License (1) No. 107013 / Member of the Ibaraki Prefecture Chapter of the All Japan Real Estate Association / Member of the Tokyo Metropolitan Area Real Estate Fair Trading Council








































