










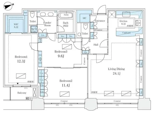
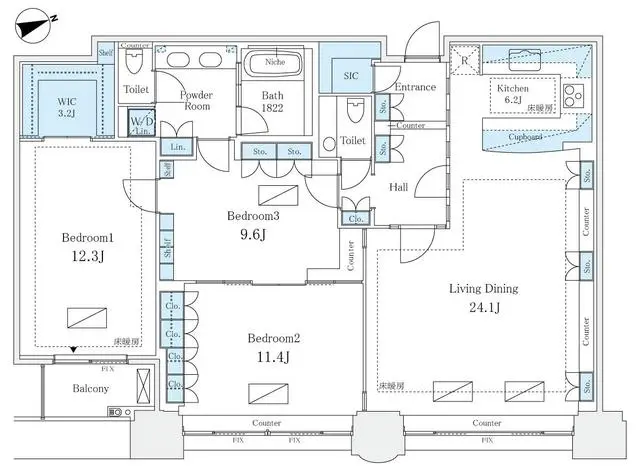
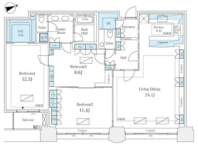
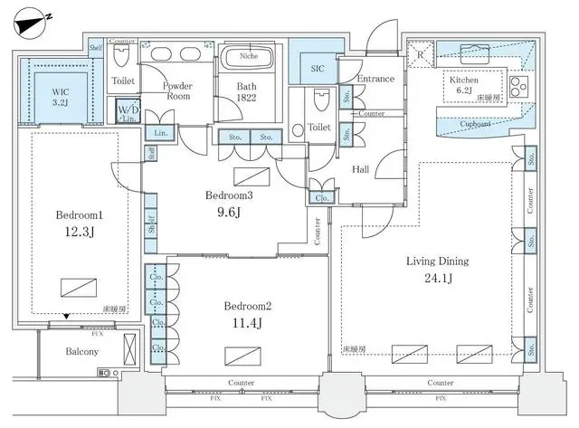
Rising above the vibrant streets of Aoyama, this expansive 138.59㎡ 3LDK at Aoyama Park Tower combines modern elegance with urban convenience. The sun-filled living space, thoughtfully designed for comfort and style, offers a rare sense of openness in central Tokyo, while high-end finishes and premium amenities elevate daily life. Perfectly positioned near Shibuya, residents enjoy seamless access to upscale shopping, acclaimed dining, and cultural attractions. The neighborhood’s leafy avenues and proximity to Aoyama Park create a tranquil retreat amidst city energy. Ideal for professionals or families seeking spacious, refined living with both cosmopolitan flair and quiet sophistication.
Listed by Tokyo Portfolio • Acting as intermediary
Listing updated: 2025-10-16
Around This Property
Shibuya
5 min walk
Yamanote- ShonanShinjuku
- Saikyo Kawagoe
- Inokashira
- Fukutoshin
- Hanzomon
- Ginza
- Toyoko
- Den En Toshi
Omote-sando
10 min walk
- Ginza
- Chiyoda
- Hanzomon
Floor Plans & Monthly Fees

¥985,000
Priceper month
Including management fee (-)¥0
•
Insurance (¥0)
3
Beds
1
Baths
138.59
m²

More Units in This Building

Aoyama Park Tower
2003
Built
5
Units on sale
This property is listed by Tokyo Portfolio.
Phone: +81 (0)3-5447-8700
Address: 5-15-12 Minami-azabu, Minato-ku, Tokyo
License number: Governor of Tokyo License (1) No. 107013 / Member of the Ibaraki Prefecture Chapter of the All Japan Real Estate Association / Member of the Tokyo Metropolitan Area Real Estate Fair Trading Council





































