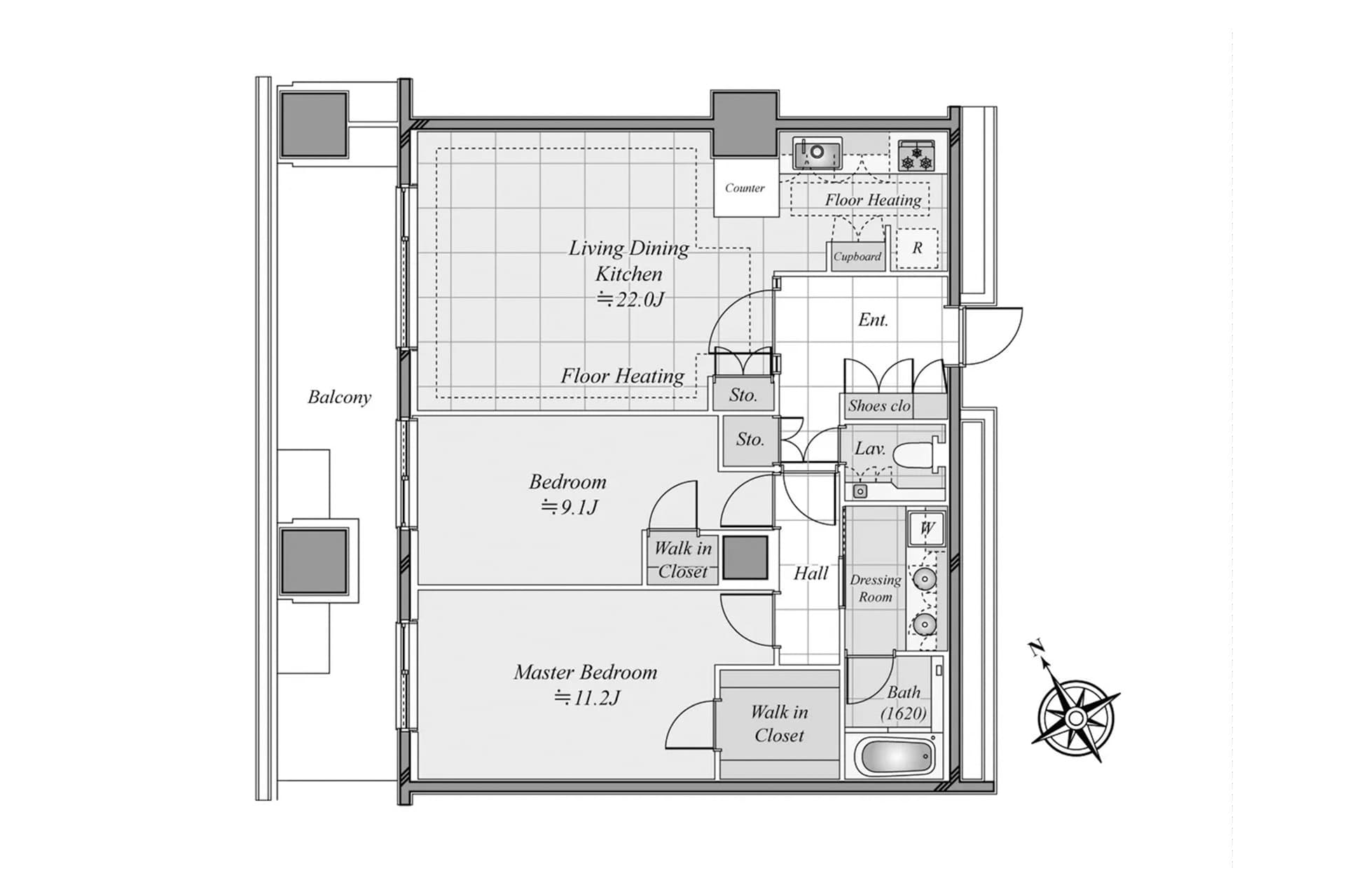
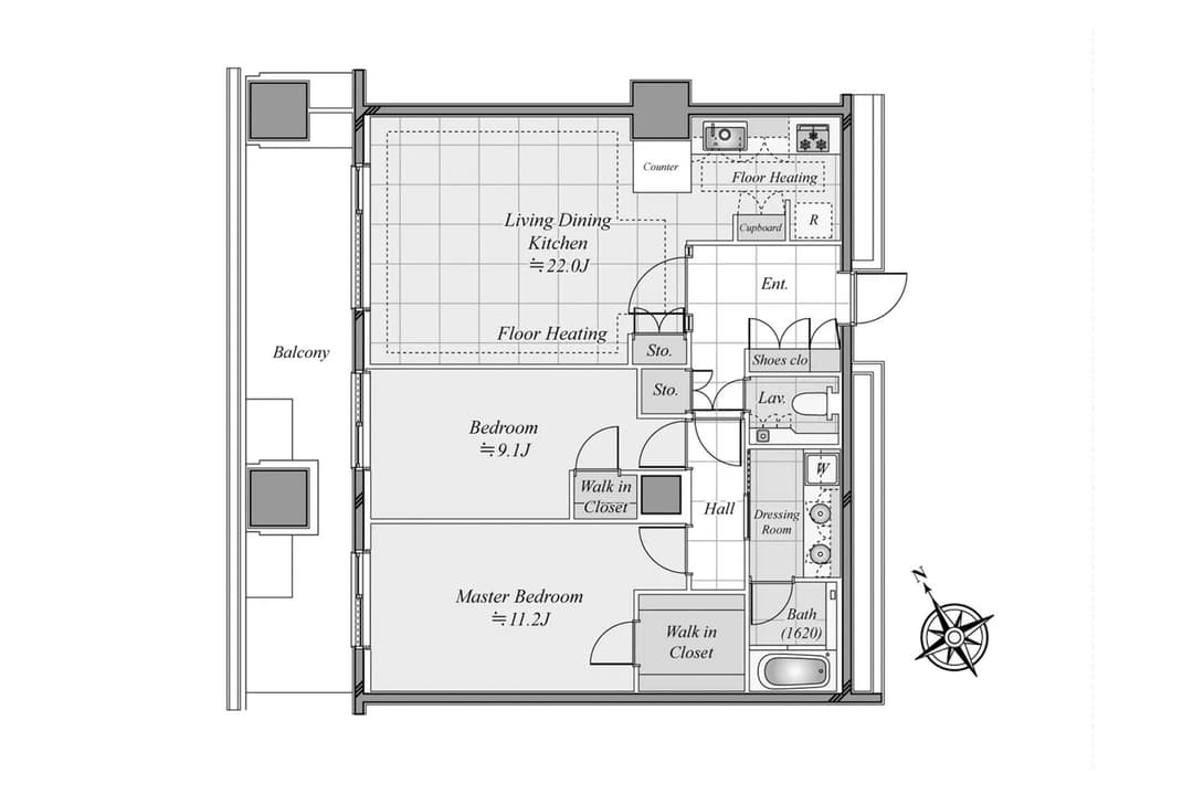
Perched within the prestigious Ark Hills Sengokuyama Residence, this meticulously renovated 2LDK offers 99.13㎡ of refined living space with soaring ceilings up to 2,750 mm. Every room opens onto a balcony, providing tranquil vistas over Izumi Garden and the lush greenery of surrounding embassies. The open, light-filled living and dining area invites both intimate evenings and stylish entertaining, while modern finishes and thoughtful design elevate everyday comfort. Nestled between Roppongi and Toranomon, this landmark residence benefits from a vibrant yet serene neighborhood. With 40% green coverage, top-tier dining, cultural venues, and international schools nearby, it’s ideal for professionals, expatriates, and discerning families seeking luxury, convenience, and privacy in Tokyo’s evolving heart.
Listed by Tokyo Portfolio • Acting as intermediary
Listing updated: 2025-09-15
Around This Property
Roppongi-itchome
4 min walk
- Namboku
Kamiyacho
6 min walk
- Hibiya
The British School Tokyo (Azabudai Hills)
Ages 3-18 years | Walk 5 mins by foot
Payment Calculator

Property Price
Interest rate
The average interest rate for a 35-year fixed loan is 1.368%, while the average variable interest rate is 0.470%.
Loan term
Down payment (20%)¥0
Estimated closing fees (5-8%)
¥44,400,000 – ¥71,040,000
↳ Commission (3.3%) + ¥66,000¥29,370,000
TOTAL DUE AT CLOSE
¥44,400,000 – ¥71,040,000| Down payment (20%) | ¥0 |
| Estimated closing fees (5-8%) ↳ Commission (3.3%) + ¥66,000 | ¥44,400,000 – ¥71,040,000 ¥29,370,000 |
| TOTAL DUE AT CLOSE | ¥44,400,000 – ¥71,040,000 |
|---|
As some of these numbers are calculated using the government-assessed value of the property, the actual total upfront cost cannot be known. Generally speaking, we recommend clients prepare an additional 5–8% on top of the list price.
See here for more details
More Units in This Building

Ark Hills Sengokuyama Residence
2012
Built
2
Units available
This property is listed by Tokyo Portfolio.
Phone: +81 (0)3-5447-8700
Address: 5-15-12 Minami-azabu, Minato-ku, Tokyo
License number: Governor of Tokyo License (1) No. 107013 / Member of the Ibaraki Prefecture Chapter of the All Japan Real Estate Association / Member of the Tokyo Metropolitan Area Real Estate Fair Trading Council
























