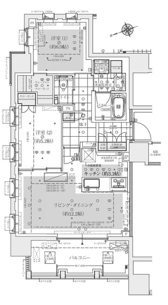
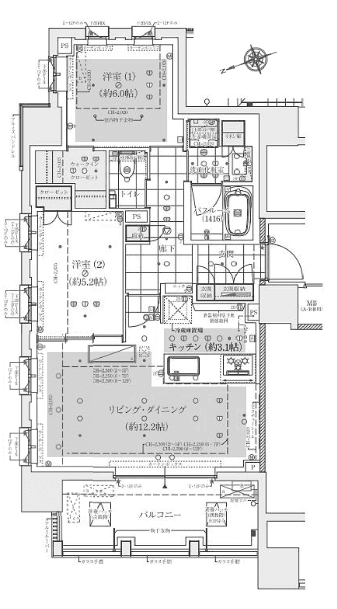
Welcome to unit 1101 at Atlas Azabu Juban, a beautifully designed 2LDK condo that offers a perfect blend of comfort and functionality. Spanning 63.95 sqm, this corner room on the 11th floor invites natural light to fill the space, enhancing the warm atmosphere throughout. The layout features a spacious living area, ideal for both relaxation and entertaining. Enjoy the convenience of a separate bathroom and toilet, complete with a modern bidet. A walk-in closet provides ample storage, while the balcony offers a serene spot to unwind. This pet-friendly unit also includes a designated parking space, ensuring ease of access. Located just a short 4-minute walk from both Toei and Tokyo Metro Azabu-juban stations, commuting is a breeze. Experience the vibrant lifestyle of urban living in this exceptional home.
Listed by Tokyo Portfolio • Acting as intermediary
Listing updated: 2026-02-20
Around This Property
Azabu-juban
4 min walk
- Oedo
- Namboku
The British School Tokyo (Azabudai Hills)
Ages 3-18 years | Walk 9 mins by foot
The Montessori School of Tokyo (Grove Campus)
Ages 1-15 years | Walk 9 mins by foot
Payment Calculator

Property Price
Interest rate
The average interest rate for a 35-year fixed loan is 1.368%, while the average variable interest rate is 0.470%.
Loan term
Down payment (20%)¥0
Estimated closing fees (5-8%)
¥15,900,000 – ¥25,440,000
↳ Commission (3.3%) + ¥66,000¥10,560,000
TOTAL DUE AT CLOSE
¥15,900,000 – ¥25,440,000| Down payment (20%) | ¥0 |
| Estimated closing fees (5-8%) ↳ Commission (3.3%) + ¥66,000 | ¥15,900,000 – ¥25,440,000 ¥10,560,000 |
| TOTAL DUE AT CLOSE | ¥15,900,000 – ¥25,440,000 |
|---|
As some of these numbers are calculated using the government-assessed value of the property, the actual total upfront cost cannot be known. Generally speaking, we recommend clients prepare an additional 5–8% on top of the list price.
See here for more details
More Units in This Building

Atlas Azabu Juban
2025
Built
1
Units available
This property is listed by Tokyo Portfolio.
Phone: +81 (0)3-5447-8700
Address: 5-15-12 Minami-azabu, Minato-ku, Tokyo
License number: Governor of Tokyo License (1) No. 107013 / Member of the Ibaraki Prefecture Chapter of the All Japan Real Estate Association / Member of the Tokyo Metropolitan Area Real Estate Fair Trading Council
















