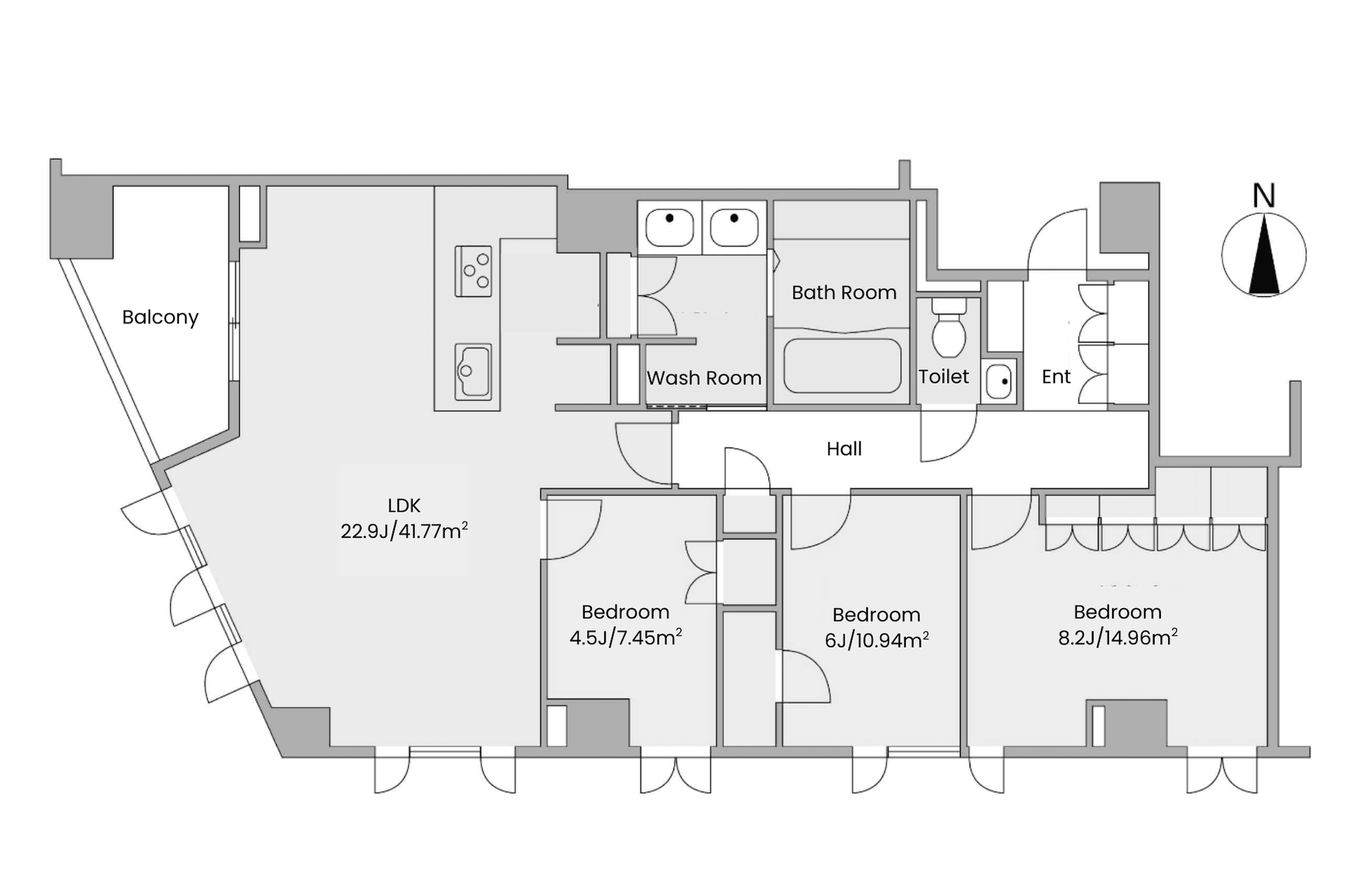
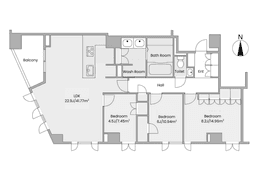
Welcome to unit 402 at Brillia Takanawa The House, a spacious 3LDK condo that offers 100.97 sqm of modern living. Situated on the fourth floor, this residence is designed for comfort and functionality, featuring a separate bathroom and toilet for added convenience. The open layout seamlessly connects living, dining, and kitchen areas, creating an inviting space for daily life and entertaining. Enjoy the luxury of a walk-in closet and a designated parking space, while the pet-friendly policy ensures your furry companions feel at home too. Step out onto your private balcony to savor the fresh air, and rest easy with the building's autolock system. With Shinagawa and Takanawadai stations just an 8 to 10-minute walk away, commuting is effortless, making this unit a perfect blend of comfort and accessibility.
Listed by Tokyo Portfolio • Acting as intermediary
Listing updated: 2026-03-08
Around This Property
Shinagawa
8 min walk
Keihin Tohoku Negishi- Main
Takanawadai
10 min walk
- Asakusa
Gotanda
12 min walk
Yamanote- Asakusa
- Ikegami
Payment Calculator

Property Price
Interest rate
The average interest rate for a 35-year fixed loan is 1.368%, while the average variable interest rate is 0.470%.
Loan term
Down payment (20%)¥0
Estimated closing fees (5-8%)
¥18,950,000 – ¥30,320,000
↳ Commission (3.3%) + ¥66,000¥12,573,000
TOTAL DUE AT CLOSE
¥18,950,000 – ¥30,320,000| Down payment (20%) | ¥0 |
| Estimated closing fees (5-8%) ↳ Commission (3.3%) + ¥66,000 | ¥18,950,000 – ¥30,320,000 ¥12,573,000 |
| TOTAL DUE AT CLOSE | ¥18,950,000 – ¥30,320,000 |
|---|
As some of these numbers are calculated using the government-assessed value of the property, the actual total upfront cost cannot be known. Generally speaking, we recommend clients prepare an additional 5–8% on top of the list price.
See here for more details
This property is listed by Tokyo Portfolio.
Phone: +81 (0)3-5447-8700
Address: 5-15-12 Minami-azabu, Minato-ku, Tokyo
License number: Governor of Tokyo License (1) No. 107013 / Member of the Ibaraki Prefecture Chapter of the All Japan Real Estate Association / Member of the Tokyo Metropolitan Area Real Estate Fair Trading Council











