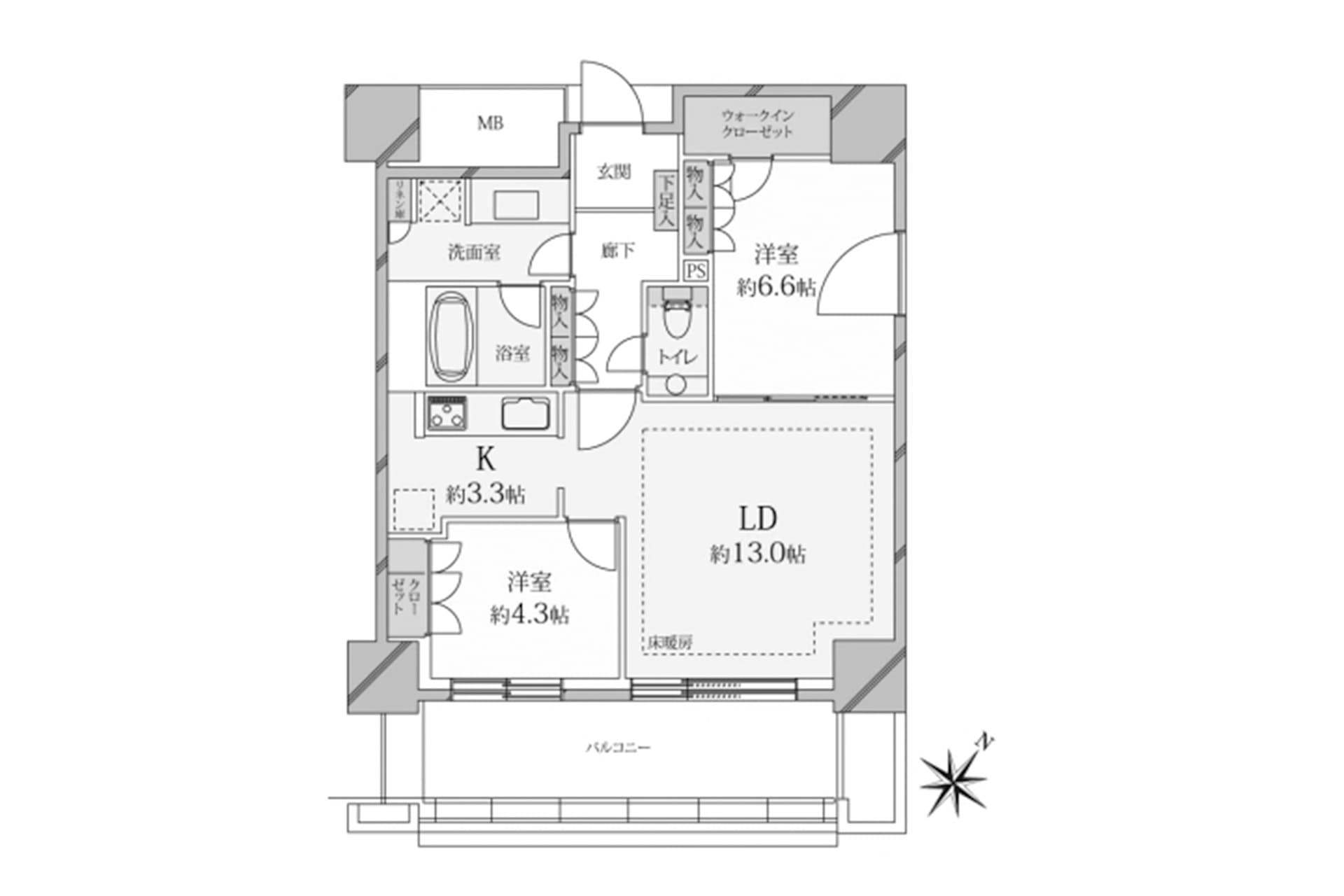
Perched on the 6th floor of Caterina Mita Tower Suites West Arc, this thoughtfully renovated 2LDK residence welcomes abundant sunlight through its southeast-facing windows. Spanning 67.12㎡, the unit features a spacious living area opening onto a generous balcony, ideal for morning coffee or evening relaxation. The master bedroom includes a walk-in closet, combining style and functionality, while pet-friendly policies ensure your companions enjoy city life alongside you. Nestled in Mita, a refined neighborhood celebrated for its quiet streets, upscale dining, and convenient access to Tamachi and Azabu-Juban, it offers an elegant balance of tranquility and connectivity. Perfect for professionals, couples, or small families seeking sophisticated city living with a cosmopolitan touch.
Listed by Tokyo Portfolio • Acting as intermediary
Listing updated: 2025-08-25
Around This Property
Tamachi
6 min walk
Keihin Tohoku Negishi
Yamanote
Mita
2 min walk
- Mita
- Asakusa
Floorplan


Payment Calculator
Property Price
Interest rate
The average interest rate for a 35-year fixed loan is 1.368%, while the average variable interest rate is 0.470%.
Loan term
Down payment (20%)¥0
Estimated closing fees (5-8%)
¥9,490,000 – ¥15,184,000
↳ Commission (3.3%) + ¥66,000¥6,329,400
TOTAL DUE AT CLOSE
¥9,490,000 – ¥15,184,000| Down payment (20%) | ¥0 |
| Estimated closing fees (5-8%) ↳ Commission (3.3%) + ¥66,000 | ¥9,490,000 – ¥15,184,000 ¥6,329,400 |
| TOTAL DUE AT CLOSE | ¥9,490,000 – ¥15,184,000 |
|---|
As some of these numbers are calculated using the government-assessed value of the property, the actual total upfront cost cannot be known. Generally speaking, we recommend clients prepare an additional 5–8% on top of the list price.
See here for more details
More Units in This Building

Caterina Mita Tower Suite
2006
Built
4
Units available
This property is listed by Tokyo Portfolio.
Phone: +81 (0)3-5447-8700
Address: 5-15-12 Minami-azabu, Minato-ku, Tokyo
License number: Governor of Tokyo License (1) No. 107013 / Member of the Ibaraki Prefecture Chapter of the All Japan Real Estate Association / Member of the Tokyo Metropolitan Area Real Estate Fair Trading Council





















