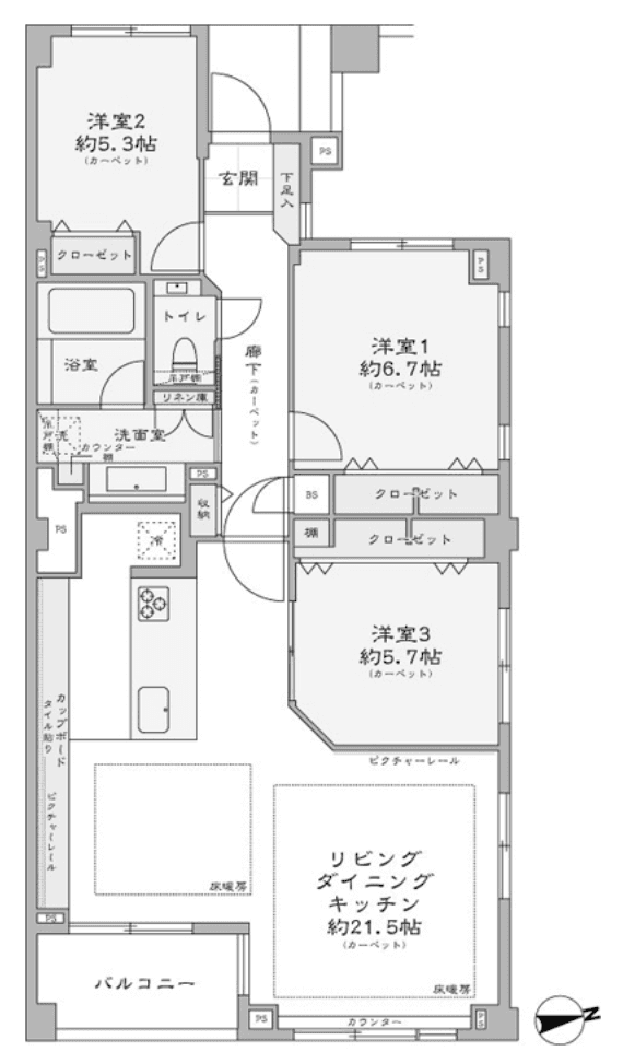
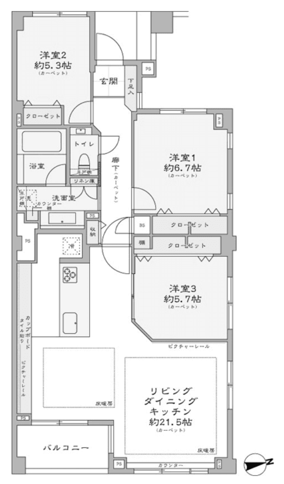
Welcome to unit 415 at City Court Yoyogi, a beautifully designed 3LDK condo that offers 92.31 square meters of comfort and functionality. Located on the fourth floor, this corner room is bathed in natural light, creating a warm and inviting atmosphere. The open layout seamlessly connects living, dining, and kitchen areas, perfect for both relaxation and entertaining. Enjoy modern amenities such as air conditioning, stylish flooring, and a private balcony to unwind after a long day. The building features convenient autolock and delivery-box systems, ensuring your peace of mind. With Yoyogi-Hachiman and Yoyogi-Koen stations just an 8 to 9-minute walk away, commuting is a breeze. Experience the perfect blend of comfort and convenience in this exceptional living space.
Listed by Tokyo Portfolio • Acting as intermediary
Listing updated: 2026-04-14
Around This Property
Yoyogi-Hachiman
8 min walk
- Odawara
Floorplan


Payment Calculator
Property Price
Interest rate
The average interest rate for a 35-year fixed loan is 1.368%, while the average variable interest rate is 0.470%.
Loan term
Down payment (20%)¥0
Estimated closing fees (5-8%)
¥10,495,000 – ¥16,792,000
↳ Commission (3.3%) + ¥66,000¥6,992,700
TOTAL DUE AT CLOSE
¥10,495,000 – ¥16,792,000| Down payment (20%) | ¥0 |
| Estimated closing fees (5-8%) ↳ Commission (3.3%) + ¥66,000 | ¥10,495,000 – ¥16,792,000 ¥6,992,700 |
| TOTAL DUE AT CLOSE | ¥10,495,000 – ¥16,792,000 |
|---|
As some of these numbers are calculated using the government-assessed value of the property, the actual total upfront cost cannot be known. Generally speaking, we recommend clients prepare an additional 5–8% on top of the list price.
See here for more details
More Units in This Building

City Court Yoyogi
1992
Built
1
Units available
This property is listed by Tokyo Portfolio.
Phone: +81 (0)3-5447-8700
Address: 5-15-12 Minami-azabu, Minato-ku, Tokyo
License number: Governor of Tokyo License (1) No. 107013 / Member of the Ibaraki Prefecture Chapter of the All Japan Real Estate Association / Member of the Tokyo Metropolitan Area Real Estate Fair Trading Council












