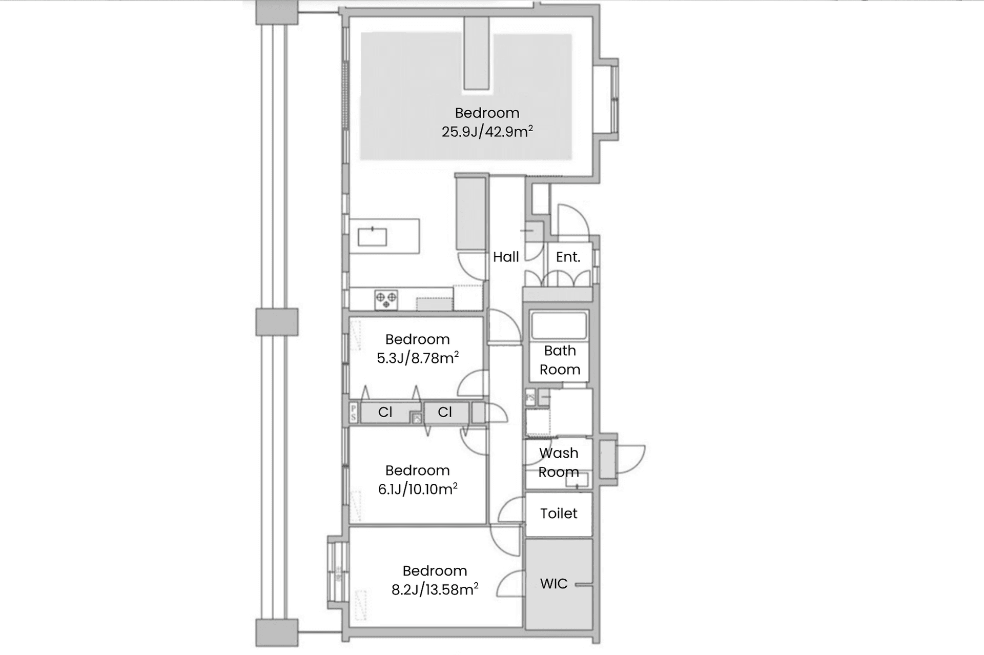
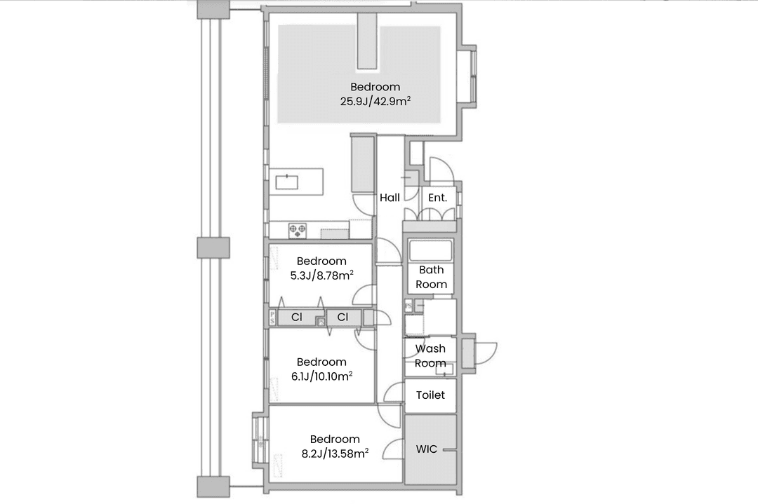
Welcome to unit 1102 at Clio Shinjuku Toyama Residence, a spacious 3LDK condo that offers a perfect blend of comfort and functionality. Spanning 106.59 square meters, this thoughtfully designed space features an open layout that seamlessly connects living, dining, and kitchen areas, making it ideal for both relaxation and entertaining. Step onto your private balcony, where you can enjoy fresh air and city views. The unit is equipped with modern amenities, including an autolock system, delivery box, and a monitor intercom for added security and convenience. A trunk room provides extra storage, ensuring your living space remains clutter-free. Located on the 11th floor, this condo offers a serene retreat while being just a short 7-minute walk to Higashi-Shinjuku station on the Yurakucho line. With Wakamatsu-Kawada and Waseda stations also within walking distance, commuting is a breeze. Experience the perfect urban lifestyle in this inviting home.
Listed by Tokyo Portfolio • Acting as intermediary
Listing updated: 2026-03-31
Around This Property
Wakamatsu-kawada
8 min walk
- Oedo
Waseda
14 min walk
- Tozai
Floorplan


Payment Calculator
Property Price
Interest rate
The average interest rate for a 35-year fixed loan is 1.368%, while the average variable interest rate is 0.470%.
Loan term
Down payment (20%)¥0
Estimated closing fees (5-8%)
¥11,000,000 – ¥17,600,000
↳ Commission (3.3%) + ¥66,000¥7,326,000
TOTAL DUE AT CLOSE
¥11,000,000 – ¥17,600,000| Down payment (20%) | ¥0 |
| Estimated closing fees (5-8%) ↳ Commission (3.3%) + ¥66,000 | ¥11,000,000 – ¥17,600,000 ¥7,326,000 |
| TOTAL DUE AT CLOSE | ¥11,000,000 – ¥17,600,000 |
|---|
As some of these numbers are calculated using the government-assessed value of the property, the actual total upfront cost cannot be known. Generally speaking, we recommend clients prepare an additional 5–8% on top of the list price.
See here for more details
This property is listed by Tokyo Portfolio.
Phone: +81 (0)3-5447-8700
Address: 5-15-12 Minami-azabu, Minato-ku, Tokyo
License number: Governor of Tokyo License (1) No. 107013 / Member of the Ibaraki Prefecture Chapter of the All Japan Real Estate Association / Member of the Tokyo Metropolitan Area Real Estate Fair Trading Council








