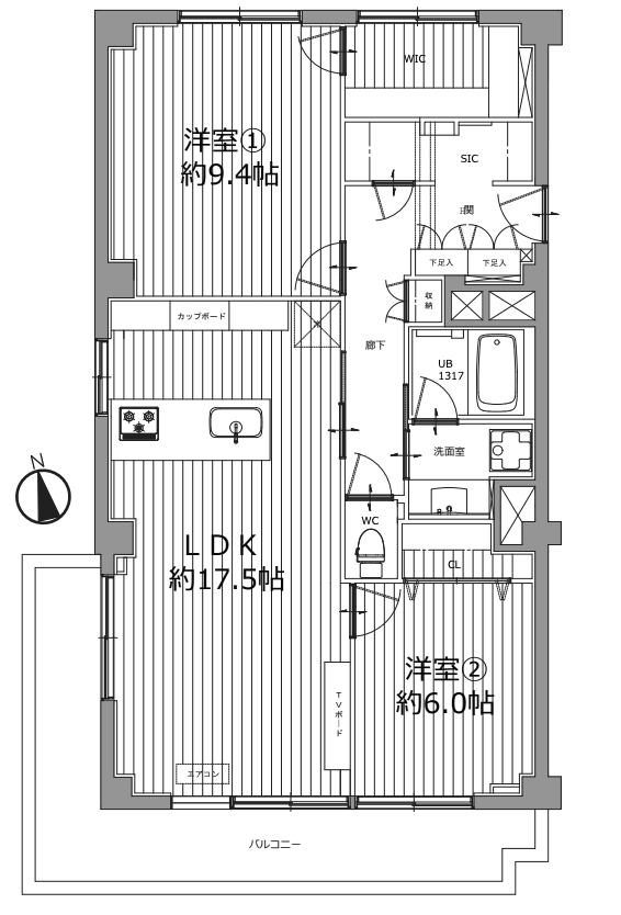
Welcome to Coop Takawa, a charming nine-story condominium located in the heart of Minato-ku, Tokyo. Built in 1969, this well-maintained building features a classic architectural character that blends seamlessly with the vibrant neighborhood. Residents enjoy modern conveniences such as city gas, an elevator, and an autolock system for added security. The surrounding area is known for its dynamic atmosphere, offering a mix of urban convenience and local charm. Just a seven-minute walk away, you will find Shinagawa Station, providing access to the Yamanote and Keihin-Tohoku lines, as well as Takanawa Gateway on the Toei Asakusa line. This prime location suits professionals and families alike, with easy access to shopping, dining, and cultural attractions. Experience the perfect balance of comfort and connectivity at Coop Takawa.
Listed by Tokyo Portfolio • Acting as intermediary
Listing updated: 2026-03-11
Available Units
Around This Property
Shinagawa
7 min walk
Yamanote- Tokaido
- JobanRapid
This property is listed by Tokyo Portfolio.
Phone: +81 (0)3-5447-8700
Address: 5-15-12 Minami-azabu, Minato-ku, Tokyo
License number: Governor of Tokyo License (1) No. 107013 / Member of the Ibaraki Prefecture Chapter of the All Japan Real Estate Association / Member of the Tokyo Metropolitan Area Real Estate Fair Trading Council

