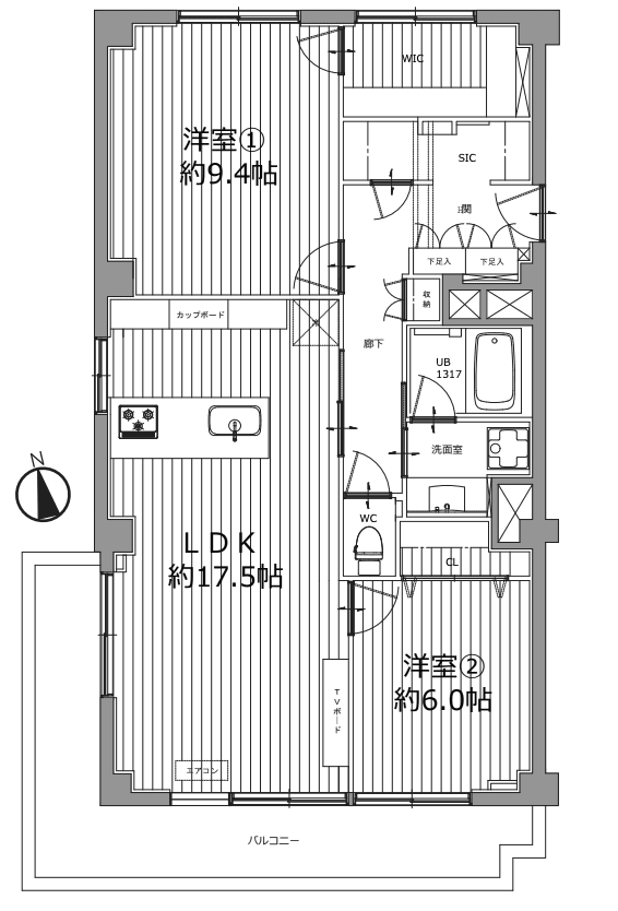
Welcome to Coop Takawa, where comfort meets functionality in unit 606. This spacious 2LDK condo spans 80.28 square meters, offering a perfect blend of modern living and thoughtful design. The open layout invites natural light, creating an airy atmosphere that enhances daily life. Step onto your private balcony, a serene spot for morning coffee or evening relaxation. The unit features convenient amenities like city gas and an elevator, ensuring easy access and comfort. A trunk room provides additional storage, keeping your living space organized. Located just a 7-minute walk from Shinagawa and Takanawa Gateway stations, commuting is effortless, allowing you to enjoy the vibrant city life. Experience the perfect balance of tranquility and accessibility in this inviting home.
Listed by Tokyo Portfolio • Acting as intermediary
Listing updated: 2026-03-11
Around This Property
Shinagawa
7 min walk
Yamanote- Tokaido
- JobanRapid
Payment Calculator

Property Price
Interest rate
The average interest rate for a 35-year fixed loan is 1.368%, while the average variable interest rate is 0.470%.
Loan term
Down payment (20%)¥0
Estimated closing fees (5-8%)
¥6,499,500 – ¥10,399,200
↳ Commission (3.3%) + ¥66,000¥4,355,670
TOTAL DUE AT CLOSE
¥6,499,500 – ¥10,399,200| Down payment (20%) | ¥0 |
| Estimated closing fees (5-8%) ↳ Commission (3.3%) + ¥66,000 | ¥6,499,500 – ¥10,399,200 ¥4,355,670 |
| TOTAL DUE AT CLOSE | ¥6,499,500 – ¥10,399,200 |
|---|
As some of these numbers are calculated using the government-assessed value of the property, the actual total upfront cost cannot be known. Generally speaking, we recommend clients prepare an additional 5–8% on top of the list price.
See here for more details
This property is listed by Tokyo Portfolio.
Phone: +81 (0)3-5447-8700
Address: 5-15-12 Minami-azabu, Minato-ku, Tokyo
License number: Governor of Tokyo License (1) No. 107013 / Member of the Ibaraki Prefecture Chapter of the All Japan Real Estate Association / Member of the Tokyo Metropolitan Area Real Estate Fair Trading Council






