A serene retreat in the heart of downtown Asakusa, this 10th-floor 2LDK residence at Cosmo Moto Asakusa blends comfort, space, and urban convenience. With 82.79㎡ of airy interiors and a 6.5㎡ balcony, the home offers bright, open living ideal for professionals, couples, or small families seeking a calm yet connected lifestyle. Step outside and you’re moments from Asakusa’s cultural landmarks, artisan cafés, hidden temples, and family-owned eateries. The neighborhood attracts creatives, history-lovers, and city-dwellers drawn to its warm community feel and walkable streets. A rare balance of tranquility and access, ready for life to unfold.
Listed by Tokyo Portfolio • Acting as intermediary
Listing updated: 2025-12-09
Around This Property
Shin-okachimachi
5 min walk
- Oedo
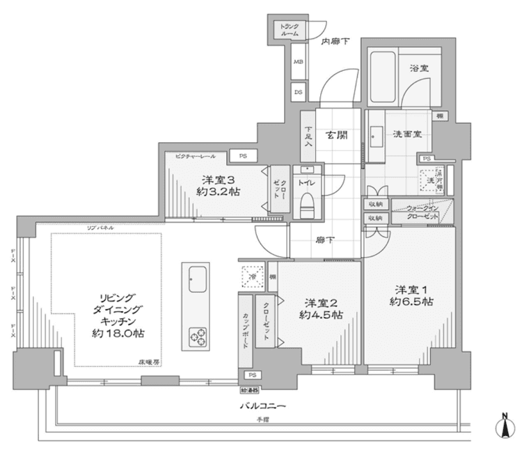
Floorplan


Payment Calculator
Property Price
Interest rate
The average interest rate for a 35-year fixed loan is 1.368%, while the average variable interest rate is 0.470%.
Loan term
Down payment (20%)¥0
Estimated closing fees (5-8%)
¥6,490,000 – ¥10,384,000
↳ Commission (3.3%) + ¥66,000¥4,349,400
TOTAL DUE AT CLOSE
¥6,490,000 – ¥10,384,000| Down payment (20%) | ¥0 |
| Estimated closing fees (5-8%) ↳ Commission (3.3%) + ¥66,000 | ¥6,490,000 – ¥10,384,000 ¥4,349,400 |
| TOTAL DUE AT CLOSE | ¥6,490,000 – ¥10,384,000 |
|---|
As some of these numbers are calculated using the government-assessed value of the property, the actual total upfront cost cannot be known. Generally speaking, we recommend clients prepare an additional 5–8% on top of the list price.
See here for more details
This property is listed by Tokyo Portfolio.
Phone: +81 (0)3-5447-8700
Address: 5-15-12 Minami-azabu, Minato-ku, Tokyo
License number: Governor of Tokyo License (1) No. 107013 / Member of the Ibaraki Prefecture Chapter of the All Japan Real Estate Association / Member of the Tokyo Metropolitan Area Real Estate Fair Trading Council


