A rare opportunity to own a spacious, fully renovated 2LDK residence in Cosmopolis Shinagawa. Spanning over 100㎡, this elegant unit offers a seamless blend of modern comfort and breathtaking scenery, with an uninterrupted view of the iconic Rainbow Bridge from the living room. Thoughtfully designed interiors provide an open, airy ambiance, while pet-friendly policies and available parking enhance daily convenience. Nestled in the dynamic Shinagawa district, this residence enjoys easy access to major transport hubs, including the Shinkansen and Haneda Airport. The area is ideal for professionals and families seeking both connectivity and waterfront tranquility, with parks, gourmet dining, and luxury shopping just moments away.
Listed by Tokyo Portfolio • Acting as intermediary
Listing updated: 2025-03-03
Around This Property
Shinagawa
10 min walk
Yokosuka
Keihin Tohoku Negishi- JobanRapid
- Tokaido
Yamanote- Main
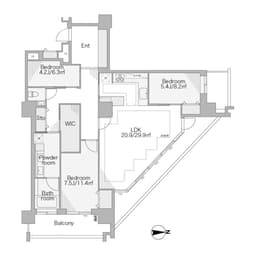
Floorplan


Payment Calculator
Property Price
Interest rate
The average interest rate for a 35-year fixed loan is 1.368%, while the average variable interest rate is 0.470%.
Loan term
Down payment (20%)¥0
Estimated closing fees (5-8%)
¥13,490,000 – ¥21,584,000
↳ Commission (3.3%) + ¥66,000¥8,969,400
TOTAL DUE AT CLOSE
¥13,490,000 – ¥21,584,000| Down payment (20%) | ¥0 |
| Estimated closing fees (5-8%) ↳ Commission (3.3%) + ¥66,000 | ¥13,490,000 – ¥21,584,000 ¥8,969,400 |
| TOTAL DUE AT CLOSE | ¥13,490,000 – ¥21,584,000 |
|---|
As some of these numbers are calculated using the government-assessed value of the property, the actual total upfront cost cannot be known. Generally speaking, we recommend clients prepare an additional 5–8% on top of the list price.
See here for more details
More Units in This Building

Cosmopolis Shinagawa
2005
Built
4
Units available
This property is listed by Tokyo Portfolio.
Phone: +81 (0)3-5447-8700
Address: 5-15-12 Minami-azabu, Minato-ku, Tokyo
License number: Governor of Tokyo License (1) No. 107013 / Member of the Ibaraki Prefecture Chapter of the All Japan Real Estate Association / Member of the Tokyo Metropolitan Area Real Estate Fair Trading Council












