













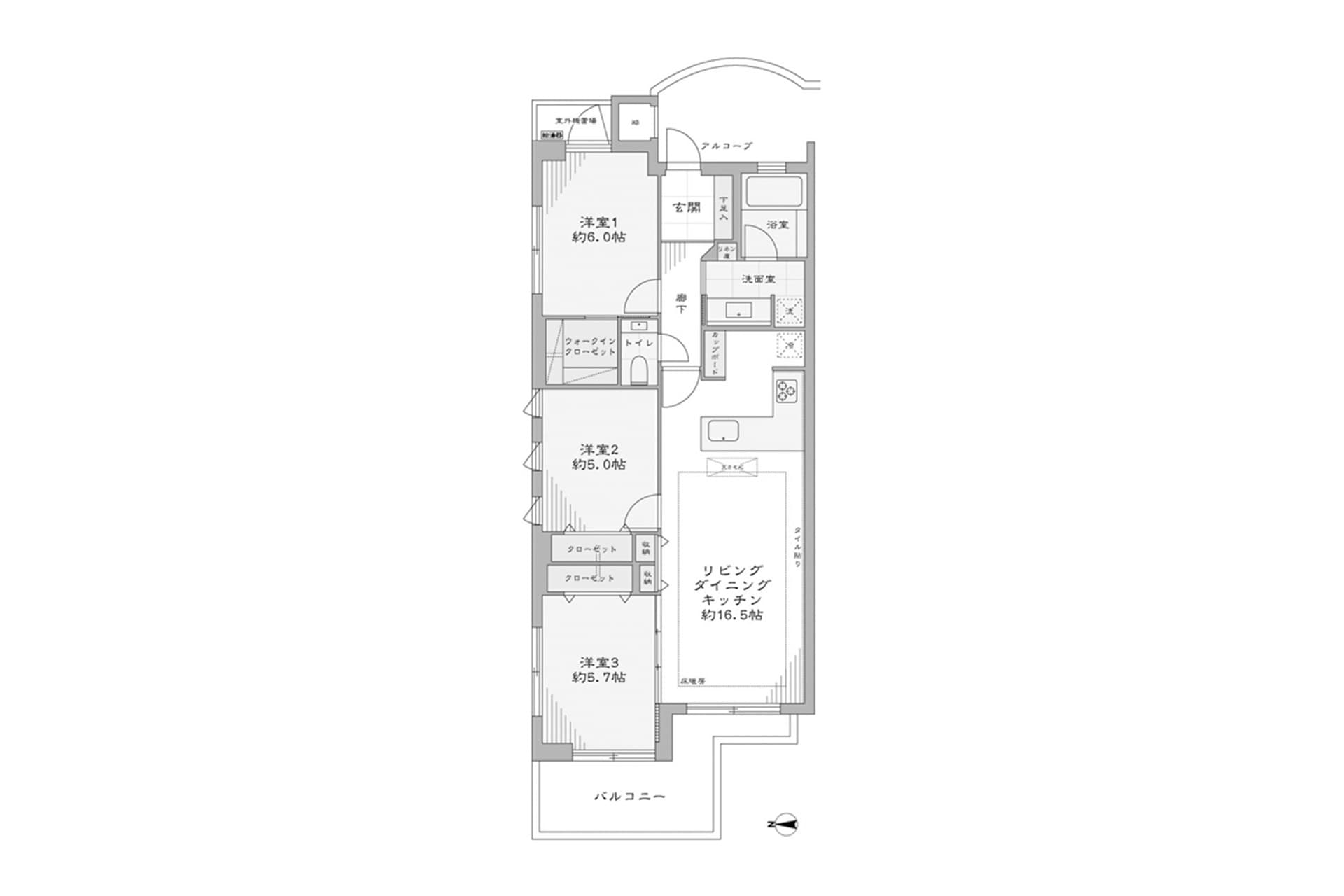
Nestled in the serene residential enclave of Hatsudai 2-chome, Diana Court Yoyogi offers a meticulously renovated 3LDK home, blending contemporary elegance with thoughtful design. Spanning 76.13㎡, this northwest corner unit enjoys abundant natural light and refreshing cross-ventilation, creating a bright and airy atmosphere. The interiors, refurbished under the guidance of United Arrows, feature refined finishes that balance style with everyday comfort. Exclusive use of an underground trunk room adds practical storage, while the low-rise setting enhances privacy and tranquility. Located within easy reach of four stations and three major lines—including the Chiyoda Line—this quiet neighborhood combines convenience with calm. Tree-lined streets, boutique cafés, and proximity to Yoyogi Park make it perfect for professionals, couples, and small families seeking a peaceful yet connected urban lifestyle.
Listed by Tokyo Portfolio • Acting as intermediary
Listing updated: 2025-10-26
Around This Property
Yoyogi-koen
10 min walk
- Chiyoda
Yoyogi-Hachiman
9 min walk
- Odawara
Hatsudai
6 min walk
- KeioNew
Payment Calculator

Property Price
approx. ¥199,000,000
Interest rate
The average interest rate for a 35-year fixed loan is 1.368%, while the average variable interest rate is 0.470%.
Loan term
Down payment (20%)¥0
Commission (3.3% + ¥66,000)¥6,633,000
Estimated closing fees (4%)
¥7,960,000
TOTAL DUE AT CLOSE
¥14,593,000| Down payment (20%) | - | ¥0 |
| Commission (3.3% + ¥66,000) | ¥6,633,000 | ¥6,633,000 |
| Estimated closing fees (4%) | ¥7,960,000 | ¥7,960,000 |
| TOTAL DUE AT CLOSE | ¥14,593,000 | ¥14,593,000 |
|---|
This property is listed by Tokyo Portfolio.
Phone: +81 (0)3-5447-8700
Address: 5-15-12 Minami-azabu, Minato-ku, Tokyo
License number: Governor of Tokyo License (1) No. 107013 / Member of the Ibaraki Prefecture Chapter of the All Japan Real Estate Association / Member of the Tokyo Metropolitan Area Real Estate Fair Trading Council



































