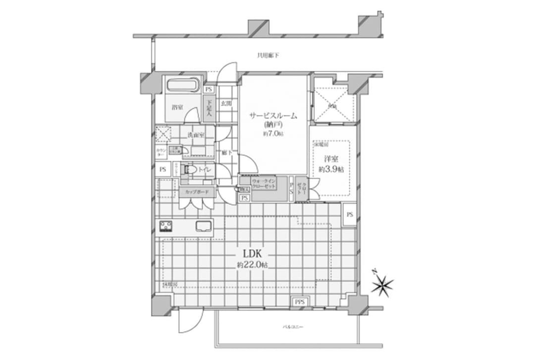
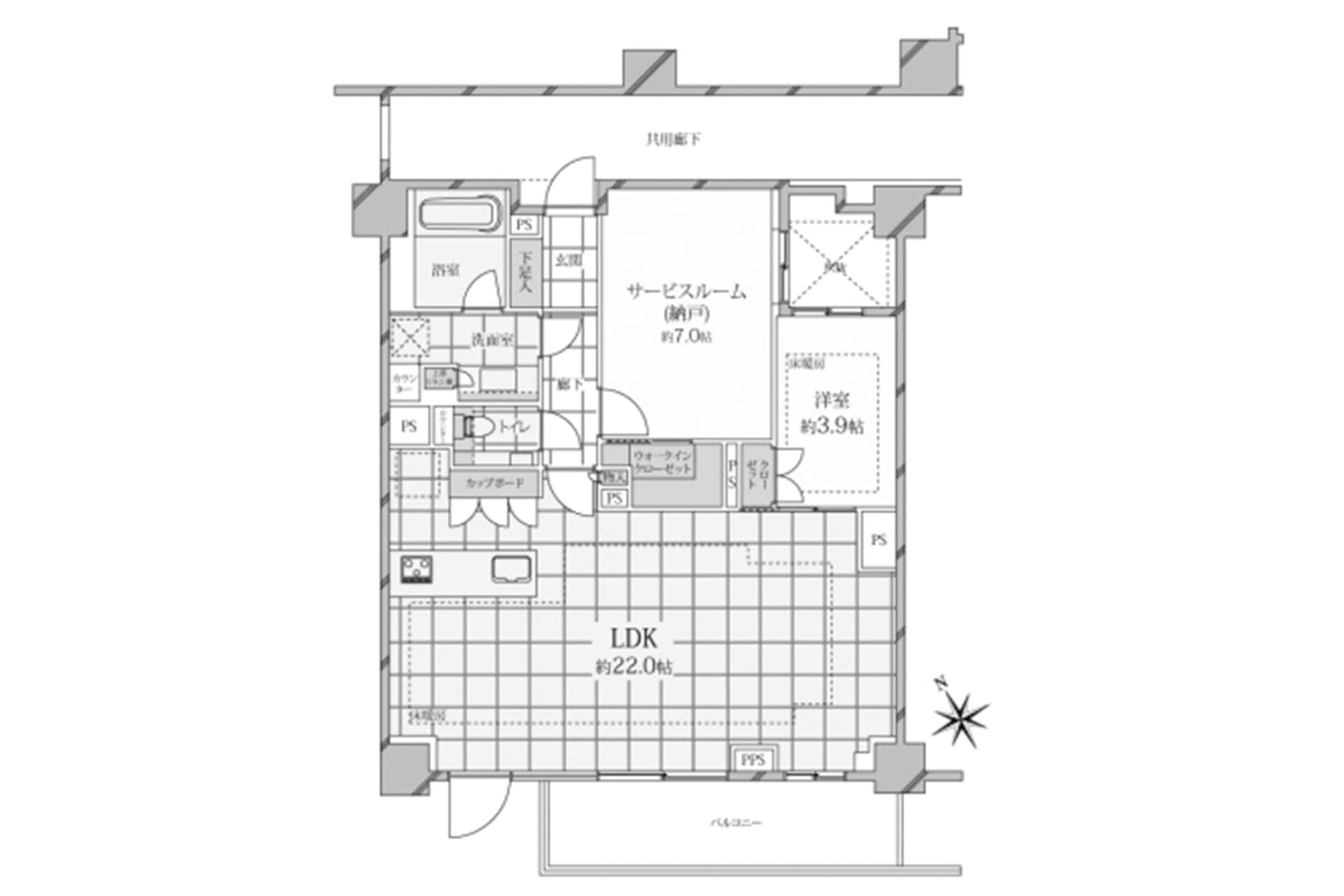
Introducing Diana Court Yutenji Residence, a newly built 2024 home where elegance meets functionality. Spanning 71.53㎡, this southwest-facing unit welcomes abundant natural light through its impressive 8.1m wide frontage. The spacious LDK flows seamlessly into a versatile service room, easily transformed into a master bedroom, offering the practicality of two living spaces. Premium upgrades, from a mist sauna to custom cabinetry, enhance the sense of refinement, while pet-friendly living and a private interior corridor ensure both comfort and privacy. Located in Yutenji, a charming neighborhood prized for its laid-back atmosphere, artisanal cafés, and boutique shops, the area offers a balance of tradition and modernity. With excellent access to Nakameguro and Daikanyama, it’s ideal for professionals, couples, and small families seeking a stylish yet welcoming community in central Tokyo.
Listed by Tokyo Portfolio • Acting as intermediary
Listing updated: 2025-08-24
Around This Property
Yutenji
5 min walk
- Toyoko
Gakugei-daigaku
14 min walk
- Toyoko
Payment Calculator

Property Price
Interest rate
The average interest rate for a 35-year fixed loan is 1.368%, while the average variable interest rate is 0.470%.
Loan term
Down payment (20%)¥0
Estimated closing fees (5-8%)
¥9,475,000 – ¥15,160,000
↳ Commission (3.3%) + ¥66,000¥6,319,500
TOTAL DUE AT CLOSE
¥9,475,000 – ¥15,160,000| Down payment (20%) | ¥0 |
| Estimated closing fees (5-8%) ↳ Commission (3.3%) + ¥66,000 | ¥9,475,000 – ¥15,160,000 ¥6,319,500 |
| TOTAL DUE AT CLOSE | ¥9,475,000 – ¥15,160,000 |
|---|
As some of these numbers are calculated using the government-assessed value of the property, the actual total upfront cost cannot be known. Generally speaking, we recommend clients prepare an additional 5–8% on top of the list price.
See here for more details
This property is listed by Tokyo Portfolio.
Phone: +81 (0)3-5447-8700
Address: 5-15-12 Minami-azabu, Minato-ku, Tokyo
License number: Governor of Tokyo License (1) No. 107013 / Member of the Ibaraki Prefecture Chapter of the All Japan Real Estate Association / Member of the Tokyo Metropolitan Area Real Estate Fair Trading Council



















