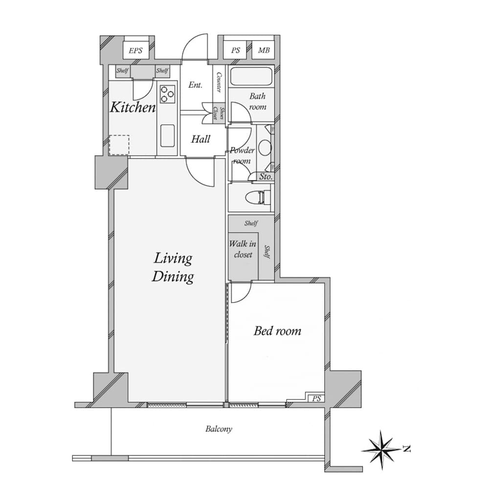
Beyond the bustle of Ebisu Station, a quiet elegance awaits. Nestled within lush greenery, Grand Maison Ebisu no Mori offers a rare retreat where timeless design meets refined comfort. This 1LDK, perched on the 5th floor and facing east, welcomes morning light through generous windows, while the approx. 3-meter-high ceilings add a sense of grandeur rarely found in city apartments. The building’s design, inspired by New York Art Deco, pairs classical sophistication with understated luxury. Residents are greeted by a grand stone-clad entrance, concierge services, and a hotel-like porte-cochère that ensures every arrival feels like a homecoming. Ebisu, known for its upscale charm, gourmet dining, and proximity to Shibuya and Daikanyama, is ideal for professionals or couples seeking both vibrancy and tranquility. Here, life flows effortlessly—from peaceful morning walks through leafy streets to evenings discovering Tokyo’s finest cuisine.
Listed by Tokyo Portfolio • Acting as intermediary
Listing updated: 2025-04-14
Around This Property
Ebisu
8 min walk
Yamanote- Saikyo
- ShonanShinjuku
- Hibiya
Payment Calculator

Property Price
Interest rate
The average interest rate for a 35-year fixed loan is 1.368%, while the average variable interest rate is 0.470%.
Loan term
Down payment (20%)¥0
Estimated closing fees (5-8%)
¥8,750,000 – ¥14,000,000
↳ Commission (3.3%) + ¥66,000¥5,841,000
TOTAL DUE AT CLOSE
¥8,750,000 – ¥14,000,000| Down payment (20%) | ¥0 |
| Estimated closing fees (5-8%) ↳ Commission (3.3%) + ¥66,000 | ¥8,750,000 – ¥14,000,000 ¥5,841,000 |
| TOTAL DUE AT CLOSE | ¥8,750,000 – ¥14,000,000 |
|---|
As some of these numbers are calculated using the government-assessed value of the property, the actual total upfront cost cannot be known. Generally speaking, we recommend clients prepare an additional 5–8% on top of the list price.
See here for more details
More Units in This Building

Grand Maison Ebisu no mori
2003
Built
1
Units available
This property is listed by Tokyo Portfolio.
Phone: +81 (0)3-5447-8700
Address: 5-15-12 Minami-azabu, Minato-ku, Tokyo
License number: Governor of Tokyo License (1) No. 107013 / Member of the Ibaraki Prefecture Chapter of the All Japan Real Estate Association / Member of the Tokyo Metropolitan Area Real Estate Fair Trading Council








