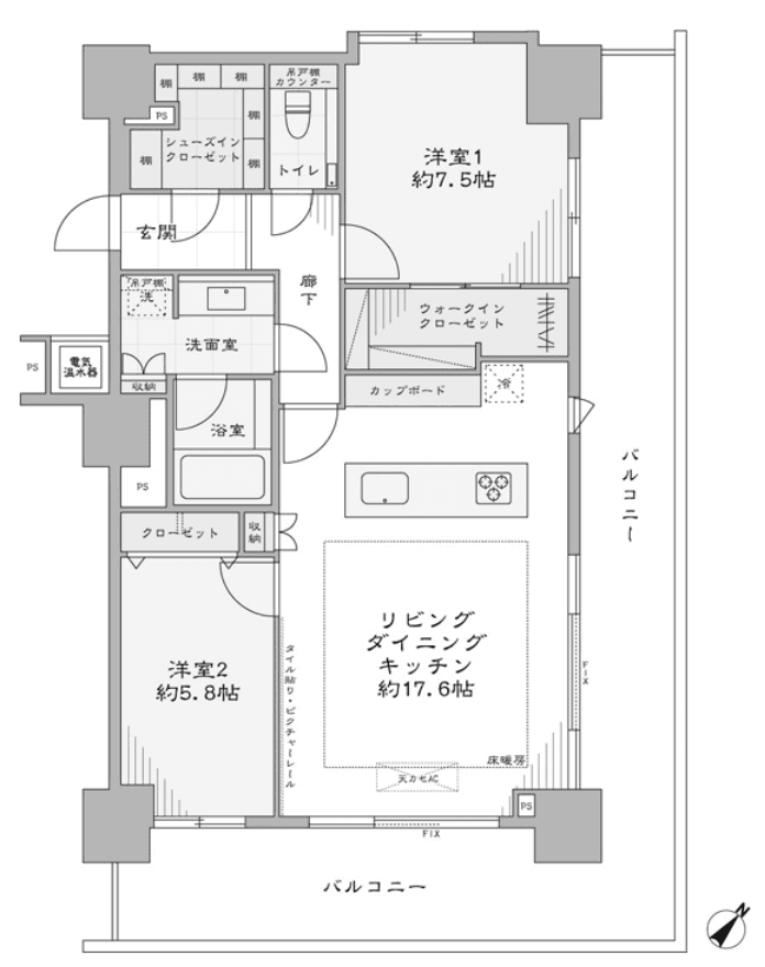
Welcome to I Mark Tower, where comfort meets modern living in unit 304. This spacious 2LDK condo spans 77.48 sqm, thoughtfully designed for both relaxation and functionality. The open layout seamlessly connects the living, dining, and kitchen areas, creating an inviting atmosphere for entertaining or unwinding after a long day. Enjoy the convenience of a separate bathroom and toilet, complete with a bidet for added comfort. The walk-in closet offers ample storage, while the balcony invites you to savor fresh air and city views. Pet-friendly amenities ensure your furry companions feel right at home. Located just a short walk from Tsukishima station, commuting is a breeze, allowing you to fully embrace the vibrant lifestyle that awaits you. With designated parking and a dishwasher, daily tasks become effortless, making this condo a perfect sanctuary for modern living.
Listed by Tokyo Portfolio • Acting as intermediary
Listing updated: 2026-03-02
Around This Property
Tsukishima
1 min walk
- Oedo
- Yurakucho
Payment Calculator

Property Price
Interest rate
The average interest rate for a 35-year fixed loan is 1.368%, while the average variable interest rate is 0.470%.
Loan term
Down payment (20%)¥0
Estimated closing fees (5-8%)
¥8,240,000 – ¥13,184,000
↳ Commission (3.3%) + ¥66,000¥5,504,400
TOTAL DUE AT CLOSE
¥8,240,000 – ¥13,184,000| Down payment (20%) | ¥0 |
| Estimated closing fees (5-8%) ↳ Commission (3.3%) + ¥66,000 | ¥8,240,000 – ¥13,184,000 ¥5,504,400 |
| TOTAL DUE AT CLOSE | ¥8,240,000 – ¥13,184,000 |
|---|
As some of these numbers are calculated using the government-assessed value of the property, the actual total upfront cost cannot be known. Generally speaking, we recommend clients prepare an additional 5–8% on top of the list price.
See here for more details
This property is listed by Tokyo Portfolio.
Phone: +81 (0)3-5447-8700
Address: 5-15-12 Minami-azabu, Minato-ku, Tokyo
License number: Governor of Tokyo License (1) No. 107013 / Member of the Ibaraki Prefecture Chapter of the All Japan Real Estate Association / Member of the Tokyo Metropolitan Area Real Estate Fair Trading Council











