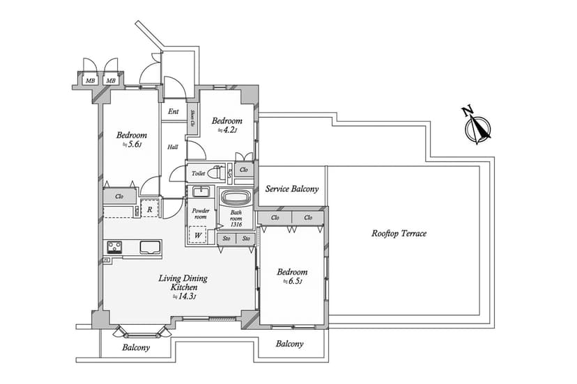
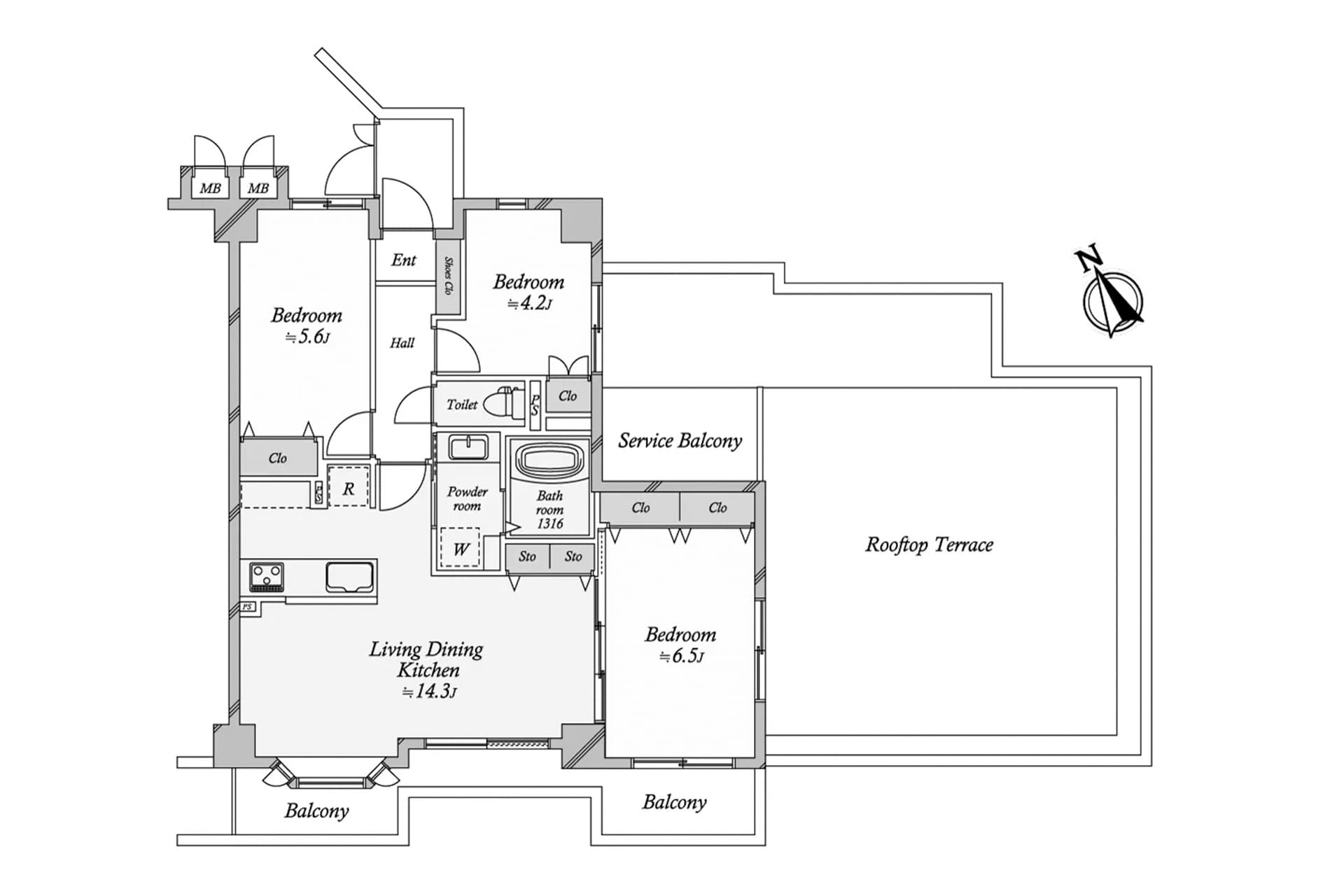
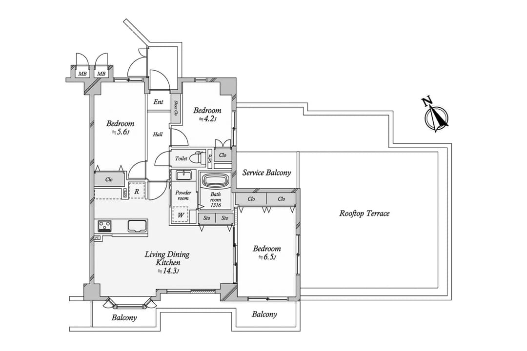
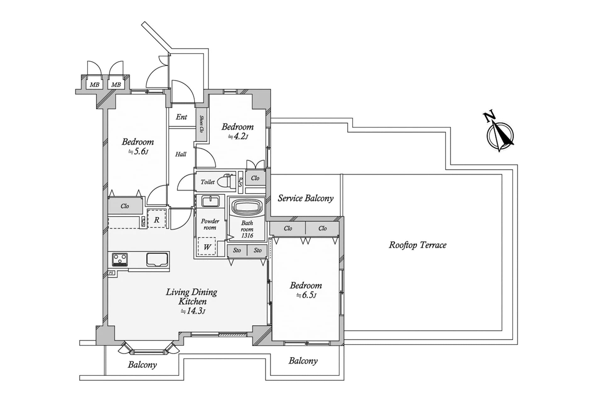
Nestled near the vibrant Shinsen district, Itopia Meguro Aobadai offers the perfect balance of city convenience and serene living. This renovated 3LDK unit basks in abundant sunlight from its southwest and southeast corner orientation, creating a warm, inviting atmosphere. The open-plan living and dining area, complemented by ample storage and a thoughtfully designed counter kitchen, encourages effortless family gatherings and lively conversation. Each bedroom enjoys cross-ventilation and built-in closets, blending comfort with practicality. The surrounding neighborhood charms with trendy cafes, boutique shops, and green retreats, making it ideal for professionals or families seeking a stylish, connected lifestyle in Meguro.
Listed by Tokyo Portfolio • Acting as intermediary
Listing updated: 2025-11-17
Around This Property
Ikejiriohashi
9 min walk
- Den En Toshi
Shinsen
8 min walk
- Inokashira
Aoba-Japan International School (Meguro Campus)
Ages 3-18 years | Walk 8 mins by foot
Payment Calculator

Property Price
Interest rate
The average interest rate for a 35-year fixed loan is 1.368%, while the average variable interest rate is 0.470%.
Loan term
Down payment (20%)¥0
Estimated closing fees (5-8%)
¥7,490,000 – ¥11,984,000
↳ Commission (3.3%) + ¥66,000¥5,009,400
TOTAL DUE AT CLOSE
¥7,490,000 – ¥11,984,000| Down payment (20%) | ¥0 |
| Estimated closing fees (5-8%) ↳ Commission (3.3%) + ¥66,000 | ¥7,490,000 – ¥11,984,000 ¥5,009,400 |
| TOTAL DUE AT CLOSE | ¥7,490,000 – ¥11,984,000 |
|---|
As some of these numbers are calculated using the government-assessed value of the property, the actual total upfront cost cannot be known. Generally speaking, we recommend clients prepare an additional 5–8% on top of the list price.
See here for more details
More Units in This Building

Itopia Meguro Aobadai
1995
Built
1
Units available
This property is listed by Tokyo Portfolio.
Phone: +81 (0)3-5447-8700
Address: 5-15-12 Minami-azabu, Minato-ku, Tokyo
License number: Governor of Tokyo License (1) No. 107013 / Member of the Ibaraki Prefecture Chapter of the All Japan Real Estate Association / Member of the Tokyo Metropolitan Area Real Estate Fair Trading Council











